EN ESTA PÁGINA
Inventario de piezas (lista de empaque) para un conmutador EX3400
Instalación y eliminación de componentes de hardware del conmutador EX3400
Montaje de un conmutador EX3400 en un escritorio u otra superficie nivelada
Montaje de un conmutador EX3400 en dos postes en un rack o gabinete
Montaje de un conmutador EX3400 en cuatro postes en un bastidor o gabinete
Montaje de un conmutador EX3400 empotrado en un rack o gabinete
Desempaquetado y montaje del conmutador EX3400
Desempaquetado de un conmutador EX3400
Los conmutadores EX3400 se envían en una caja de cartón, asegurada con material de embalaje de espuma. La caja también contiene una caja de accesorios.
Los conmutadores EX3400 están protegidos al máximo dentro de la caja de envío. No desempaquete los conmutadores hasta que esté listo para comenzar la instalación.
Para desempaquetar el conmutador:
- Mueva la caja de envío a un área de ensayo lo más cerca posible del lugar de instalación, pero donde tenga suficiente espacio para retirar los componentes del sistema.
- Coloque la caja de manera que las flechas apunten hacia arriba.
- Abra las solapas superiores de la caja de envío.
- Retire la caja de accesorios y verifique el contenido de ella con el inventario de piezas en la etiqueta adherida a la caja.
- Extraiga el material de embalaje que mantiene el interruptor en su lugar.
- Verifique los componentes del chasis recibidos con la lista de empaque incluida con el conmutador. Un inventario de las piezas suministradas con el conmutador se proporciona en Inventario de piezas (lista de empaque) para un conmutador EX3400.
- Guarde la caja de envío y los materiales de embalaje en caso de que necesite mover o enviar el interruptor más adelante.
Inventario de piezas (lista de empaque) para un conmutador EX3400
Los conmutadores EX3400 se envían en una caja de cartón, asegurada con material de embalaje de espuma. La caja también contiene una caja de accesorios.
El envío del conmutador incluye una lista de embalaje. Compare las piezas que recibe en la caja de envío del conmutador con los artículos de la lista de embalaje. Las piezas enviadas dependen de la configuración que solicite.
Si falta alguna parte de la lista de empaque, comuníquese con su representante de servicio al cliente o con el servicio de atención al cliente de Juniper desde EE. UU. o Canadá por teléfono al 1-888-314-5822. Para conocer las opciones de marcación internacional o directa en países sin números gratuitos, consulte https://www.juniper.net/support/requesting-support.html.
En el cuadro 1 se enumeran las partes y sus cantidades en la lista de embalaje.
Componente |
Cantidad |
|---|---|
Conmutador con una fuente de alimentación y dos módulos de ventilador |
1 |
Cable de alimentación de CA apropiado para su ubicación geográfica (solo para modelos de conmutadores de CA) |
1 |
Clip de retención del cable de alimentación (solo para modelos de conmutadores de CA) |
1 |
Soportes de montaje |
2 |
Tornillos de montaje para fijar los soportes de montaje al chasis del conmutador |
8 |
Pies de goma |
4 |
Hoja de ruta de documentación |
1 |
Garantía de productos de Juniper Networks |
1 |
Acuerdo de licencia de usuario final |
1 |
Debe proporcionar tornillos de montaje que sean adecuados para que su bastidor o gabinete monte el chasis en un bastidor o gabinete.
Datos de instalación de la base de actualización
Actualice los datos de la base de instalación si se produce alguna adición o cambio en la base de instalación o si se mueve la base de instalación. Juniper Networks no es responsable de no cumplir con el SLA de reemplazo de hardware para productos que no tienen datos precisos de la base de instalación.
Actualice su base de instalación en https://supportportal.juniper.net/s/CreateCase .
Instalación y conexión de un conmutador EX3400
Para instalar y conectar un conmutador EX3400:
Ver también
Instalación y eliminación de componentes de hardware del conmutador EX3400
El chasis del conmutador EX3400 es una estructura rígida de chapa metálica que alberga los componentes de hardware. Las unidades reemplazables en campo (FRU) de los conmutadores EX3400 son:
Fuentes de alimentación
Módulos de ventilador
Transceptores
Las fuentes de alimentación y los módulos del ventilador son extraíbles en caliente e insertables en caliente: puede quitarlos y reemplazarlos sin apagar el interruptor ni interrumpir las funciones del interruptor.
Consulte estos temas para obtener instrucciones sobre cómo instalar y quitar componentes:
Instalación de una fuente de alimentación de CA en un conmutador EX3400
Extracción de una fuente de alimentación de CA de un conmutador EX3400
Instalación de un módulo de ventilador en un conmutador EX3400
Extracción de un módulo de ventilador de un conmutador EX3400
Instalación de una fuente de alimentación de CC en un conmutador EX3400
Extracción de una fuente de alimentación de CC de un conmutador EX3400
Ver también
Montaje de un conmutador EX3400 en un escritorio u otra superficie nivelada
Antes de montar el conmutador en un escritorio u otra superficie nivelada:
-
Verifique que el sitio cumpla con los requisitos descritos en Lista de verificación de preparación del sitio para conmutadores EX3400.
-
Coloque el escritorio en su ubicación permanente, permitiendo un espacio adecuado para el flujo de aire y el mantenimiento, y asegúrelo a la estructura del edificio.
-
Lea las Pautas y advertencias generales de seguridad, con especial atención a las pautas de elevación de chasis y componentes.
Asegúrese de tener disponibles las siguientes piezas y herramientas:
-
4 patas de goma para estabilizar el chasis en un escritorio u otra superficie nivelada (suministrado en la caja de accesorios en la caja de interruptores)
Puede montar un conmutador EX3400 en un escritorio u otra superficie nivelada utilizando las cuatro patas de goma que se incluyen con el conmutador. Las patas de goma estabilizan el chasis.
Para montar un conmutador en un escritorio u otra superficie nivelada:
- Retire el conmutador de la caja de envío (consulte Desembalaje de un conmutador EX3400).
- Gire el chasis boca abajo en el escritorio o en la superficie nivelada donde desea montar el conmutador.
- Fije las patas de goma a la parte inferior del chasis, como se muestra en la figura 1.
- Gire el chasis hacia arriba en el escritorio o en la superficie nivelada.
- Asegúrese de que el interruptor descanse firmemente sobre el escritorio o la superficie nivelada.
de interruptor
|
1
—
Pies de goma |
Ver también
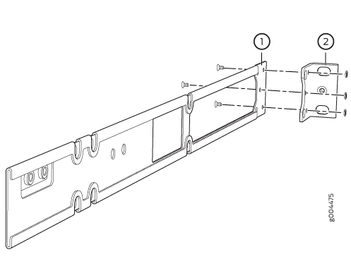
Montaje de un conmutador EX3400 en dos postes en un rack o gabinete
Antes de montar el interruptor en dos postes de un rack:
-
Verifique que el sitio cumpla con los requisitos descritos en Lista de verificación de preparación del sitio para conmutadores EX3400.
-
Coloque el bastidor en su ubicación permanente, lo que permite un espacio libre adecuado para el flujo de aire y el mantenimiento, y asegúrelo a la estructura del edificio.
-
Lea las Pautas y advertencias generales de seguridad, con especial atención a las pautas de elevación de chasis y componentes.
Asegúrese de tener disponibles las siguientes piezas y herramientas:
-
Destornillador Phillips (+), número 2 (no incluido)
-
2 soportes de montaje y 8 tornillos de montaje (incluido)
-
Tornillos para fijar el chasis al bastidor (no incluido)
-
Soportes de montaje frontal empotrados de 2 pulgadas (del kit de montaje en rack de cuatro postes que se puede pedir por separado) si va a montar el conmutador en una posición empotrada
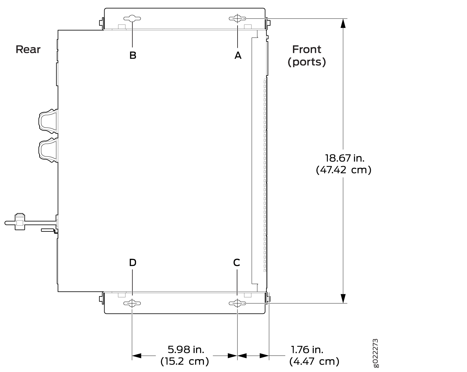
Puede montar un conmutador EX3400 en dos postes de un conmutador de 19 pulgadas. rack o gabinete utilizando los soportes de montaje provistos con el conmutador. (El resto de este tema usa bastidor para referirse a bastidor o gabinete).
Puede montar el conmutador en cuatro postes de un bastidor de cuatro postes utilizando los soportes de montaje suministrados con el kit de montaje en bastidor de cuatro postes que se puede pedir por separado. Consulte Montaje de un conmutador EX3400 en cuatro postes en un bastidor o gabinete.
Si necesita montar el conmutador empotrado en un bastidor de dos postes o en un bastidor de cuatro postes, puede utilizar los soportes de montaje frontal empotrados de 2 pulgadas que se proporcionan en el kit de montaje en bastidor de cuatro postes que se puede pedir por separado.
Una persona debe estar disponible para levantar el interruptor mientras otra asegura el interruptor al bastidor.
Si va a montar varias unidades en un bastidor, monte la unidad más pesada en la parte inferior del bastidor y monte las demás unidades desde la parte inferior del bastidor hasta la parte superior en orden decreciente del peso de las unidades.
Para montar el conmutador en dos postes de un bastidor:
Ver también
Montaje de un conmutador EX3400 en cuatro postes en un bastidor o gabinete
Antes de montar el interruptor en cuatro postes de un rack:
-
Verifique que el sitio cumpla con los requisitos descritos en Lista de verificación de preparación del sitio para conmutadores EX3400.
-
Coloque el bastidor en su ubicación permanente, lo que permite un espacio libre adecuado para el flujo de aire y el mantenimiento, y asegúrelo a la estructura del edificio.
-
Lea las Pautas y advertencias generales de seguridad, con especial atención a las pautas de elevación de chasis y componentes.
Asegúrese de tener disponibles las siguientes piezas y herramientas:
-
Destornillador Phillips (+), número 2
-
6 tornillos de montaje 4-40 de cabeza plana (suministrados con el kit de montaje en bastidor de cuatro postes)
-
8 tornillos de montaje Phillips de cabeza plana de 4x6 mm (suministrados con el kit de montaje en rack de cuatro postes)
-
Un par de soportes de montaje frontal empotrados o empotrados de 2" (provistos con el kit de montaje en rack de cuatro postes)
-
Un par de rieles de montaje lateral (provistos con el kit de montaje en rack de cuatro postes)
-
Un par de cuchillas de montaje trasero (suministradas con el kit de montaje en rack de cuatro postes)
-
Tornillos para fijar el chasis y las cuchillas de montaje trasero al bastidor (no incluido)
Puede montar un conmutador EX3400 en cuatro postes de un conmutador de 19 pulgadas. Bastidor o gabinete mediante el uso del kit de montaje en bastidor de cuatro postes que se puede pedir por separado. (El resto de este tema usa bastidor para referirse a bastidor o gabinete).
Puede montar el conmutador en dos postes en un bastidor de dos postes o en un bastidor de cuatro postes utilizando los soportes de montaje provistos con el conmutador. Consulte Montaje de un conmutador EX3400 en dos postes en un bastidor o gabinete.
Si necesita montar el conmutador empotrado en un bastidor de dos postes o en un bastidor de cuatro postes, puede utilizar los soportes de montaje frontal empotrados de 2 pulgadas que se proporcionan en el kit de montaje en bastidor de cuatro postes que se puede pedir por separado.
Una persona debe estar disponible para levantar el interruptor mientras otra asegura el interruptor al bastidor.
Si va a montar varias unidades en un bastidor, monte la unidad más pesada en la parte inferior del bastidor y monte las demás unidades desde la parte inferior del bastidor hasta la parte superior en orden decreciente del peso de las unidades.
Para montar el conmutador en cuatro postes de un bastidor:
Ver también
Montaje de un conmutador EX3400 empotrado en un rack o gabinete
Puede montar un conmutador EX3400 en un bastidor o gabinete de manera que el conmutador quede empotrado dentro del bastidor desde la parte frontal del bastidor por 2 pulgadas. Puede utilizar los soportes de montaje frontal empotrados de 2 pulgadas que se proporcionan en el kit de montaje en bastidor de cuatro postes que se puede pedir por separado para montar el conmutador en una posición empotrada.
Las razones por las que es posible que desee montar el conmutador en una posición empotrada incluyen:
Está montando el interruptor en un gabinete y las puertas del gabinete no se cierran completamente a menos que el interruptor esté empotrado.
El conmutador que está montando tiene transceptores instalados en los puertos de enlace ascendente y los transceptores en los puertos de enlace ascendente sobresalen de la parte frontal del conmutador.
Para montar el conmutador empotrado en cuatro postes, siga las instrucciones de Montaje de un conmutador EX3400 en cuatro postes en un bastidor o gabinete. Para montar el conmutador en una posición empotrada en dos postes, siga las instrucciones de Montaje de un conmutador EX3400 en dos postes en un bastidor o gabinete.
Ver también
Montaje de un conmutador EX3400 en una pared
Antes de montar el interruptor en una pared:
-
Verifique que el sitio cumpla con los requisitos descritos en Lista de verificación de preparación del sitio para conmutadores EX3400.
-
Lea las Pautas y advertencias generales de seguridad, con especial atención a las pautas de elevación de chasis y componentes.
Asegúrese de tener disponibles las siguientes piezas y herramientas:
-
2 soportes de montaje en pared (incluidos en el kit de montaje en pared)
-
12 tornillos de soporte de montaje en pared (incluidos en el kit de montaje en pared)
-
6 tornillos de montaje (8-32 x 1,25 pulg. o M4 x 30 mm) (no incluido)
-
Anclajes de pared huecos clasificados para soportar hasta 75 lb (34 kg) si no está atornillando los tornillos directamente en los montantes de pared (no incluido)
-
Destornillador Phillips (+), número 2
Puede montar un conmutador EX3400 en una pared utilizando el kit de montaje en pared que se puede pedir por separado.
Para montar uno o dos interruptores en una pared:







