Install the PTX12008
This topic guides you through the steps to install the PTX12008 in a 19-inch wide four-post rack or in a cabinet that has a 19-inch wide four-post rack.
You can install the PTX12008 in a 19-inch wide four-post rack or in a cabinet that has a 19-inch wide four-post rack. Use the rack mount kit shipped with the router. The remainder of this topic uses rack to mean rack or cabinet.
Complete these prerequisites before you install the router:
-
Prepare the site for installation as described in Site and Electrical Guidelines.
-
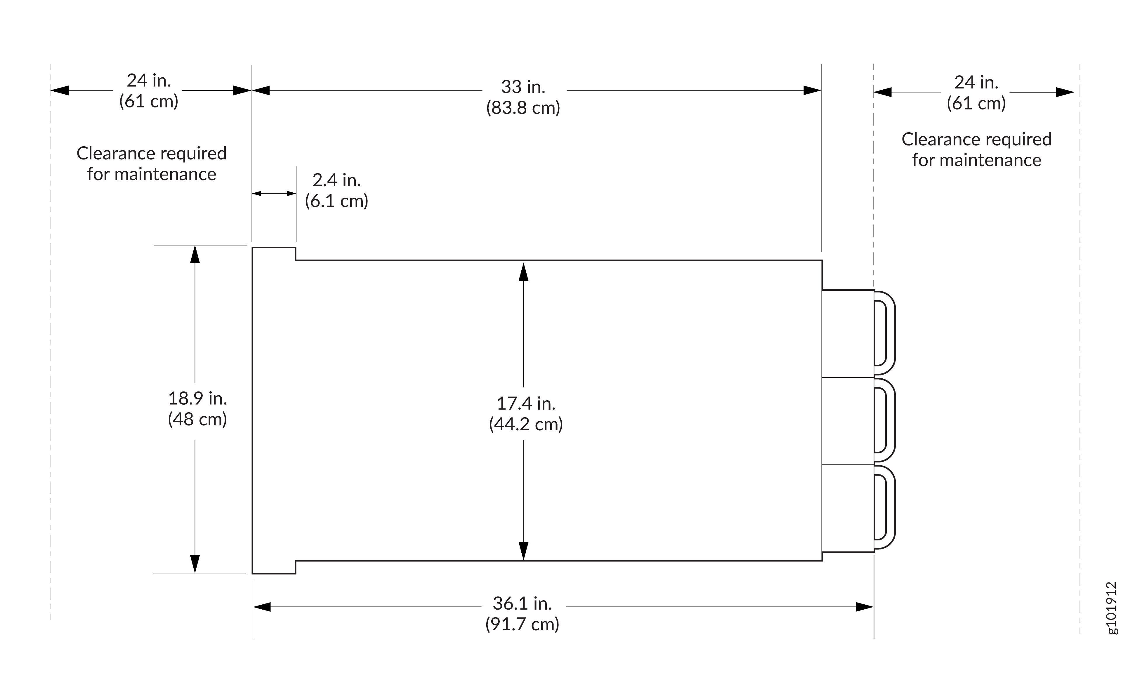
Ensure that the site has adequate clearance for both airflow and hardware maintenance.
Figure 1: Clearance Requirements for PTX12008
-
Unpack the router as described in Unpack the PTX12008.
Before mounting the router, a qualified technician must verify that the rack is strong enough to support the router's weight. Have the technician also verify that the rack has adequate support at the installation site.
If you are installing more than one router on a rack, install the first router at the bottom of the rack.
Do not install Flexible PIC Concentrators (FPCs) in the chassis until after you mount the chassis securely on a rack.
Install the PTX12008 in a Rack
You can install the PTX12008 in a 19-inch wide four-post rack or in a cabinet that has a 19-inch wide four-post rack. The remainder of this topic uses rack to mean rack or cabinet.
Before you install the PTX12008 in a rack, review the following:
-
Ensure that you understand how to prevent electrostatic discharge (ESD) damage. See Prevention of Electrostatic Discharge Damage.
-
Ensure that you know how to handle and store FPCs.
-
Have three persons available—two persons to push the router onto the mounting tray and a third person to align the router to the mounting tray.
-
Ensure that you have the following parts and tools available:
-
The rack mount kit—provided
-
An ESD grounding strap—not provided
-
50 screws appropriate for your rack—not provided
-
A screwdriver to attach screws to your rack—not provided
-
A lift—not provided
-
-
If Routing and Control Boards (RCBs), FPCs, power supply modules (PSMs), fan trays, or Switch Interface Boards (SIBs) are installed in the chassis, remove them. See:
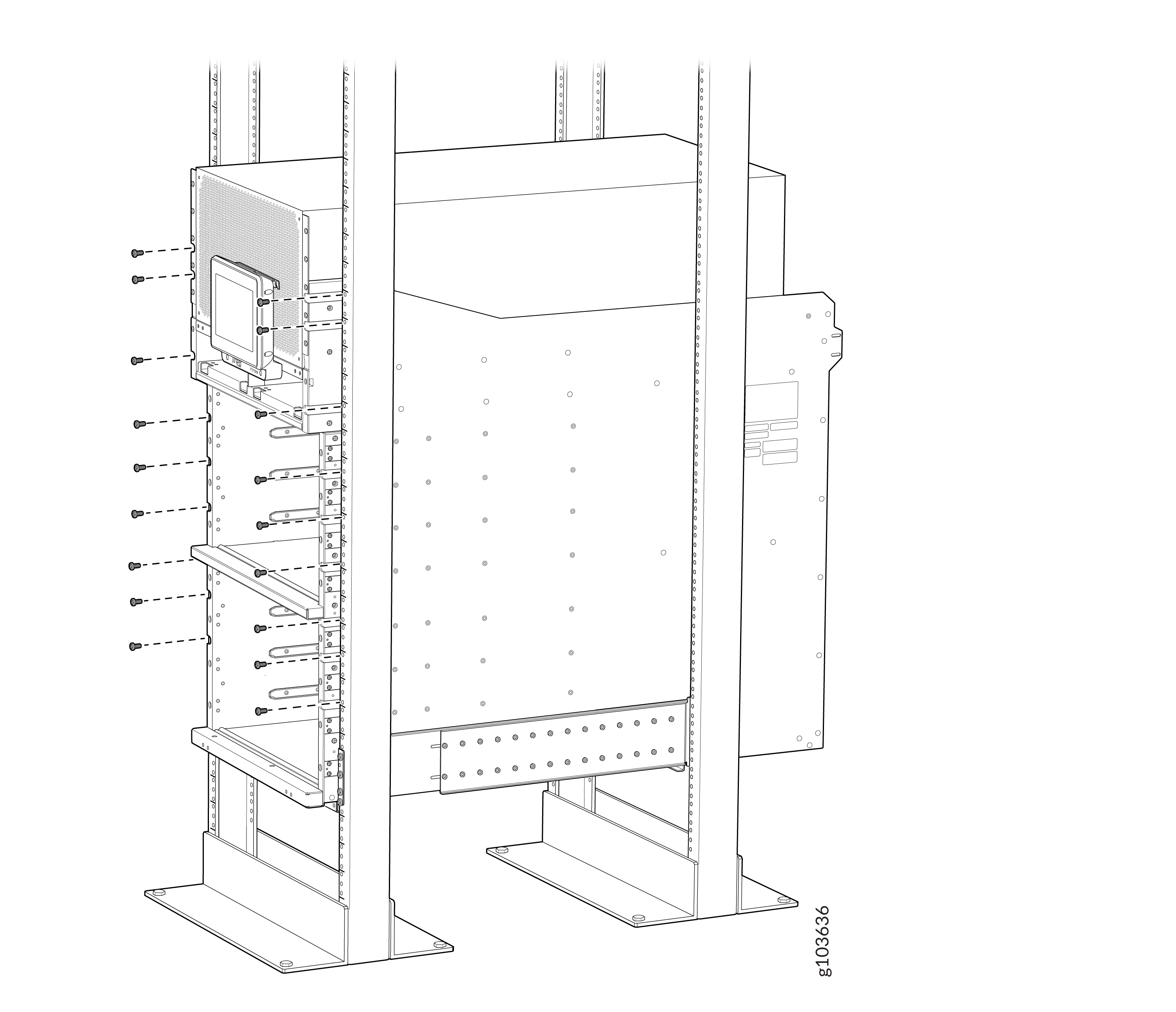
To install the PTX12008 in a rack:
To install fan trays, FPCs, PSMs, RCBs, or SIBs in the chassis, see:
Install the Front Door
The front door protects fiber-optic cabling and provides additional protection from electromagnetic interference (EMI).
Before you install the PTX12008 in a rack, review the following:
-
Ensure that you understand how to prevent electrostatic discharge (ESD) damage. See Prevention of Electrostatic Discharge Damage.
-
Ensure that you have the following parts and tools available:
-
An ESD grounding strap—not provided
-
A Phillips (+) screwdriver, number 2—not provided
-
To install the front door on a PTX12008:















