Help us improve your experience.

Let us know what you think.

Do you have time for a two-minute survey?

 
 

MX10008 Site Preparation Overview

MX10008 Site Preparation Checklist

The checklist in Table 1 summarizes the tasks you need to perform when preparing a site for an MX10008 installation.

Table 1: Site Preparation Checklist

Item or Task

For More Information

Environment  

Verify that environmental factors such as temperature and humidity do not exceed router tolerances.

MX10008 Environmental Requirements and Specifications

Power  

Measure the distance between external power sources and the router installation site.

 

Calculate the power consumption and requirements.

MX10008 Power Planning

Rack  

Verify that your rack meets the minimum requirements for the installation of the router.

MX10008 Rack Requirements

Plan rack location, including required space clearances.

MX10008 Depth Clearance Requirements for Airflow and Hardware Maintenance

Secure the rack to the floor and building structure.

 

Cables  

Acquire cables and connectors:

  • Determine the number of cables needed based on your planned configuration.

  • Review the maximum distance allowed for each cable. Choose the length of cable based on the distance between the hardware components being connected.

The list of supported transceivers for the MX10008 line cards is located at MX10008 Transceivers and Specifications

Plan the cable routing and management.

 

Hardware Upgrades

Order upgrade kits or individual components. See MX10008 Components and Configurations.

MX10008 Environmental Requirements and Specifications

The MX10008 router must be installed in a four-post rack. It must be housed in a dry, clean, well-ventilated, and temperature-controlled environment.

Follow these environmental guidelines:

  • The site must be as dust-free as possible, because dust can clog air intake vents and filters, reducing the efficiency of the router cooling system.

  • Maintain ambient airflow for normal router operation. If the airflow is blocked or restricted, or if the intake air is too warm, the router might overheat, leading to the router temperature monitor shutting down the device to protect the hardware components.

Table 2 provides the required environmental conditions for normal router operation.

Table 2: MX10000 Environmental Tolerances

Description

Tolerance

Altitude

No performance degradation up to 6000 feet (1829 meters).

Relative humidity

Normal operation ensured in relative humidity range of 5% through 90%, noncondensing.

  • Short-term operation ensured in relative humidity range of 5% through 93%, noncondensing.

    Note:

    As defined in NEBS GR-63-CORE, Issue 3, short-term events can be up to 96 hours in duration but not more than 15 days per year.

Temperature

  • Normal operation ensured in temperature range of 32° F through 104° F (0° C through 40° C).

    Note:

    The chassis can be temporarily be operated at 45° C at sea level for up to 1% of the time ( 3.65 days per year).

  • Nonoperating storage temperature in shipping container: –40° F through 158° F (–40° C through 70° C).

  • Short-term operation ensured in temperature range of 32°F through 104°F (0°C through 40°C) at 6000 ft altitude and 32°F through 114.8°F (0°C through 46°C) at sea-level.

    Note:

    As defined in NEBS GR-63-CORE, Issue 3, short-term events can be up to 96 hours in duration but not more than 15 days per year.

Seismic

Designed to comply with Zone 4 earthquake requirements per NEBS GR-63-CORE, Issue 3.

Note:

Install MX10008 router only in restricted areas, such as dedicated equipment rooms and equipment closets, in accordance with Articles 110-16, 110-17, and 110-18 of the National Electrical Code, ANSI/NFPA 70.

General Site Guidelines

This topic applies to hardware devices in the MX10008 routers.

Efficient device operation requires proper site planning and maintenance and proper layout of the equipment, rack or cabinet (if used), and wiring closet.

To plan and create an acceptable operating environment for your device and prevent environmentally caused equipment failures:

  • Keep the area around the chassis free from dust and conductive material, such as metal flakes.

  • Follow prescribed airflow guidelines to ensure that the cooling system functions properly and that exhaust from other equipment does not blow into the intake vents of the device.

  • Follow the prescribed electrostatic discharge (ESD) prevention procedures to prevent damaging the equipment. Static discharge can cause components to fail completely or intermittently over time.

  • Install the device in a secure area, so that only authorized personnel can access the device.

Site Electrical Wiring Guidelines

Table 3 describes the factors you must consider while planning the electrical wiring at your site.

CAUTION:

It is particularly important to provide a properly grounded and shielded environment and to use electrical surge-suppression devices.

Table 3: Site Electrical Wiring Guidelines

Site Wiring Factor

Guideline

Signaling limitations

To ensure that signaling functions optimally:

  • Install wires correctly.

    Improperly installed wires can emit radio interference.

  • Do not exceed the recommended distances or pass wires between buildings.

    The potential for damage from lightning strikes increases if wires exceed recommended distances or if wires pass between buildings.

  • Shield all conductors.

    The electromagnetic pulse (EMP) caused by lightning can damage unshielded conductors and destroy electronic devices.

Radio frequency interference (RFI)

To reduce or eliminate the emission of RFI from your site wiring:

  • Use twisted-pair cable with a good distribution of grounding conductors.

  • Use a high-quality twisted-pair cable with one ground conductor for each data signal when applicable, if you must exceed the recommended distances.

Electromagnetic compatibility (EMC)

Provide a properly grounded and shielded environment and use electrical surge-suppression devices.

Strong sources of electromagnetic interference (EMI) can cause the following damage:

  • Destruction of the signal drivers and receivers in the device.

  • Electrical hazards as a result of power surges conducted over the lines into the equipment.

Tip:

If your site is susceptible to problems with EMC, particularly from lightning or radio transmitters, you might want to seek expert advice.

Warning:

The intrabuilding port(s) of the equipment or subassembly is suitable for connection to intrabuilding or unexposed wiring or cabling only. The intrabuilding port(s) of the equipment or subassembly MUST NOT be metallically connected to interfaces that connect to the OSP or its wiring. These interfaces are designed for use as intrabuilding interfaces only (Type 2 or Type 4 ports as described in GR-1089-CORE), and require isolation from the exposed OSP cabling. The addition of primary protectors is not sufficient protection to connect these interfaces metallically to OSP wiring

MX10008 Rack Requirements

The MX10008 router chassis are designed to be installed in four-post racks.

Rack requirements consist of:

  • Rack type

  • Mounting bracket hole spacing

  • Rack size and strength

  • Rack connection to the building structure

Table 4 provides the rack requirements and specifications for the MX10008 router .

Table 4: Rack Requirements for the MX10008

Rack Requirement

Guidelines

Rack type: four-post

Use a four-post rack that provides bracket holes or hole patterns spaced at 1 U (1.75 in. or 4.45 cm) increments and that meets the size and strength requirements to support the weight.

A U is the standard rack unit defined in Cabinets, Racks, Panels, and Associated Equipment (document number EIA-310–D) published by the Electronics Industry Association.

You can stack three MX10008 routers if:

  • The rack is 39 U or greater.

  • The rack meets the strength requirements to support the weight.

  • The facility can provide adequate power and cooling.

Rack mount kit hole spacing

The holes in the rack mount kit are spaced at 1 U (1.75 in. or 4.45 cm), so that the router can be mounted in any rack that provides holes spaced at that distance.

Rack size and strength

  • Ensure that the rack complies with the standards for a 19-in. wide rack as defined in Cabinets, Racks, Panels, and Associated Equipment (document number EIA-310–D) published by the Electronics Industry Association.

  • Use one of the standard rack depths as defined in the four-part Equipment Engineering (EE); European telecommunications standard for equipment practice (document numbers ETS 300 119-1 through 119-4) published by the European Telecommunications Standards Institute (http://www.etsi.org). The following values are applicable only if you are using an open rack:

    • 23.62 in. (600 mm)

    • 30.0 in. (762 mm)

    • 31.5 in. (800 mm)

  • If you are using a closed rack, it must have sufficient space clearance in front of the chassis to accommodate the EMI door (which extends to about 6 in.). An MX10008 router (chassis + EMI door with filter + fan trays + PSU handle) is 39.4 in. deep.
  • Ensure that the rack rails are spaced widely enough to accommodate the router chassis’ external dimensions. The outer edges of the flange extend the chassis width to 19 in. (48.26 cm).

  • Ensure that the rack is strong enough to support the weight of the router and cabling.

  • Ensure that the spacing of rails and adjacent racks allows for proper clearance around the router and rack. See MX10008 Depth Clearance Requirements for Airflow and Hardware Maintenance.

Rack connection to building structure

  • Secure the rack to the building structure.

  • If earthquakes are a possibility in your geographical area, secure the rack to the floor.

  • Secure the rack to the ceiling as well as to the wall or floor for maximum stability.

MX10008 Depth Clearance Requirements for Airflow and Hardware Maintenance

When planning the site for an MX10008 router installation, you must allow sufficient clearance around the installed chassis for cooling and maintenance (see Figure 1 for MX10008.

Note:

A minimum of half-an-inch clear space from the bottom of the chassisis is required for easy removal and insertion of the fan tray.

Figure 1: Depth Clearance Requirements for Airflow and Hardware Maintenance for an MX10008 Chassis Depth Clearance Requirements for Airflow and Hardware Maintenance for an MX10008 Chassis
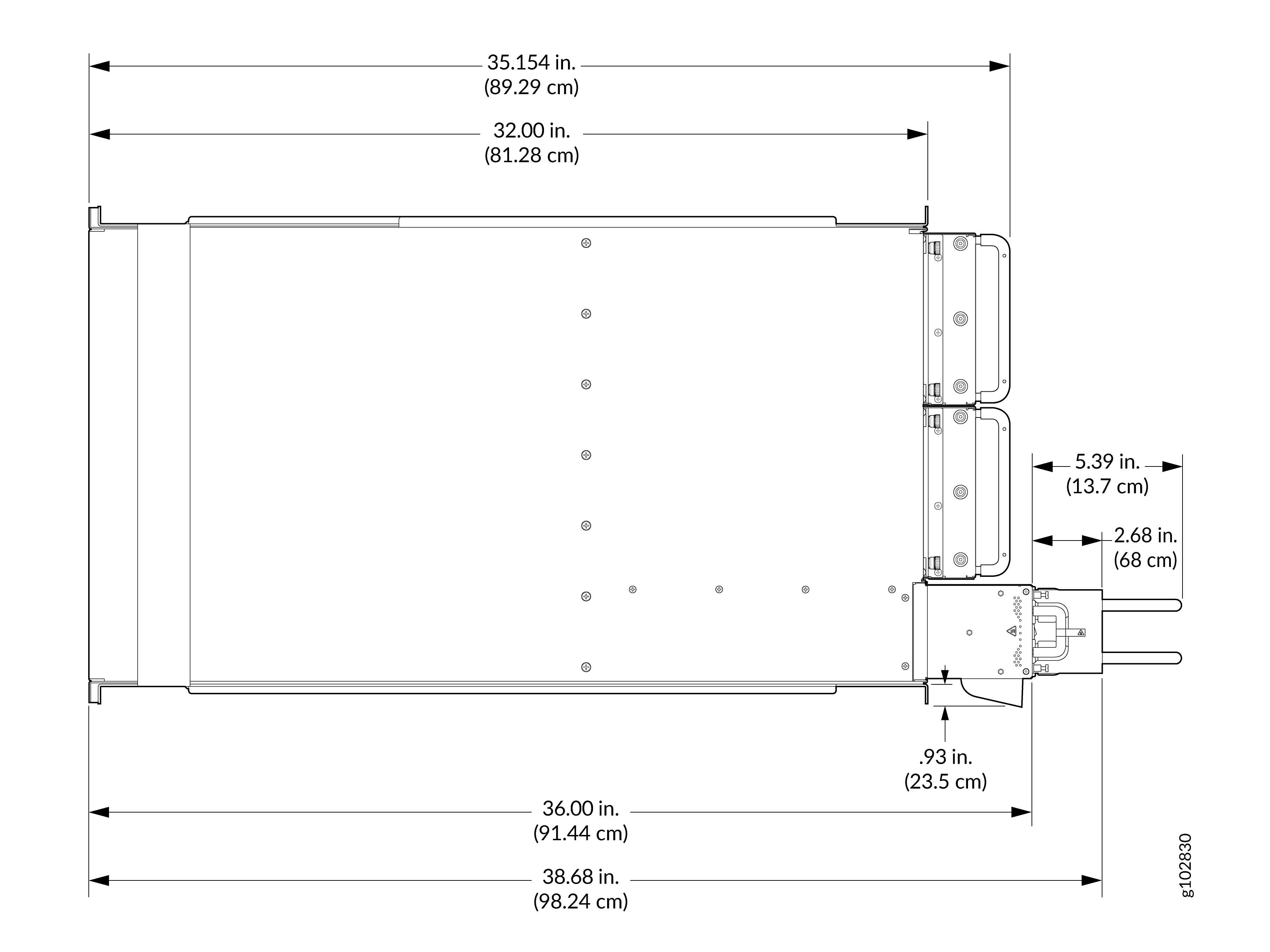
Figure 2: Clearance Requirements for Airflow and Hardware Maintenance for a MX10008 with JNP10008-FAN2 Clearance Requirements for Airflow and Hardware Maintenance for a MX10008 with JNP10008-FAN2
Figure 3: Clearance Requirements for Airflow and Hardware Maintenance for a MX10008 with JNP10K-PWR-AC3 Power Supply with Right Angle Power Cable Technical drawing of a rectangular object with dimensions in inches and centimeters, showing top view with width, length, and protruding components.
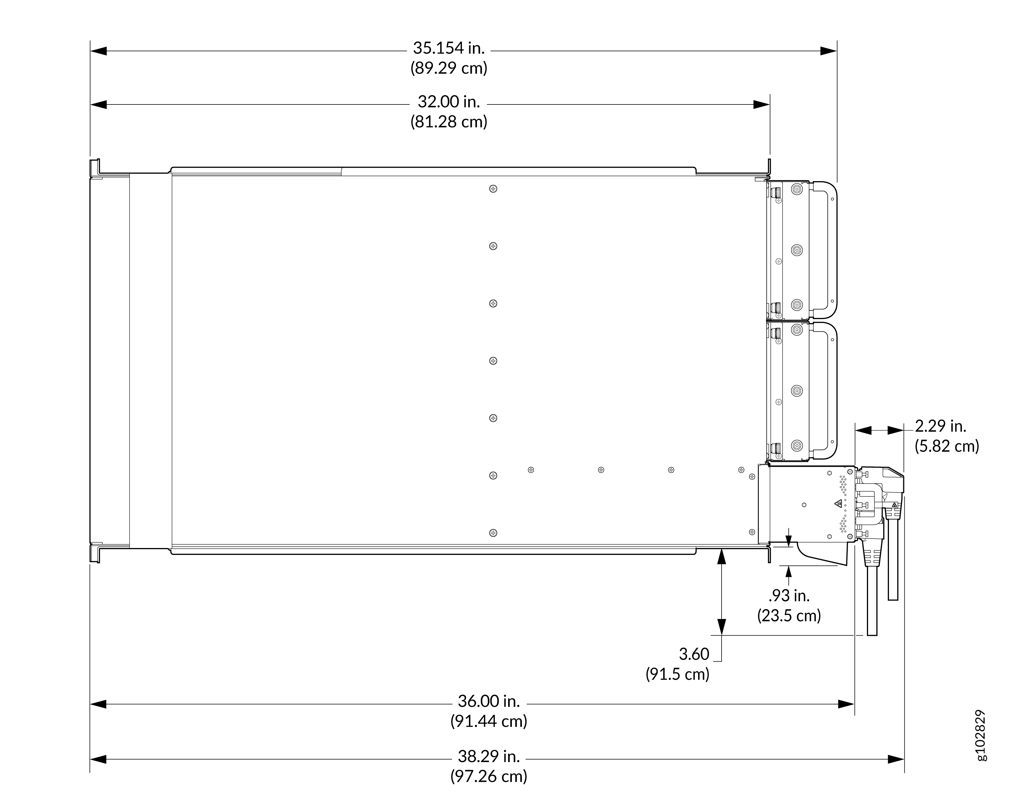
Figure 4: Clearance Requirements for Airflow and Hardware Maintenance for a MX10008 with JNP10K-PWR-AC3 Power Supply with Straight Power Cable Technical drawing of a rectangular device with dimensions in inches and centimeters, featuring connectors and mounting points.
Note:

Leave at least 12 in. (30.5 cm) clearance in front and behind the chassis for airflow.

Note:

For JNP10K-PWR-AC3 power supply, the overall depth is 36 in. (91.44 cm) instead of 34.2 in. and the power cable depth is 6 in. (15.24 cm) instead of 7 in.

Follow these guidelines:

  • For the cooling system to function properly, the airflow around the chassis must be unrestricted. See MX10008 Cooling System and Airflow for more information about the airflow through the chassis.

  • If you are mounting an MX10008 router in a rack with other equipment, ensure that the exhaust from other equipment does not blow into the intake vents of the chassis.

  • Leave at least 24 in. (61 cm) both in front of and behind the MX10008 for service personnel to remove and install hardware components. To be NEBS GR-63 compliant, allow at least 30 in. (76.2 cm) in front of the rack and 24 in. (61 cm) behind the rack.