このページの内容
PTX10008電源システムコンポーネントの取り付けと取り外し
PTX10008ルーターは、AC、DC、高電圧交流(HVAC)、および高電圧直流(HVDC)電源の両方をサポートしています。PTX10008 ルーターの電源の取り付けと取り外しについては、次のセクションをお読みください。すべての電源モデルは、ホットインサートおよびホット取り外し可能なFRU(フィールド交換可能ユニット)です。シャーシ背面の左側に設けられたスロットに最大6個の電源を取り付けることができます。
すべてのスロットに同じタイプの電源を使用します。同じシャーシに電源モデルを混在させないでください。
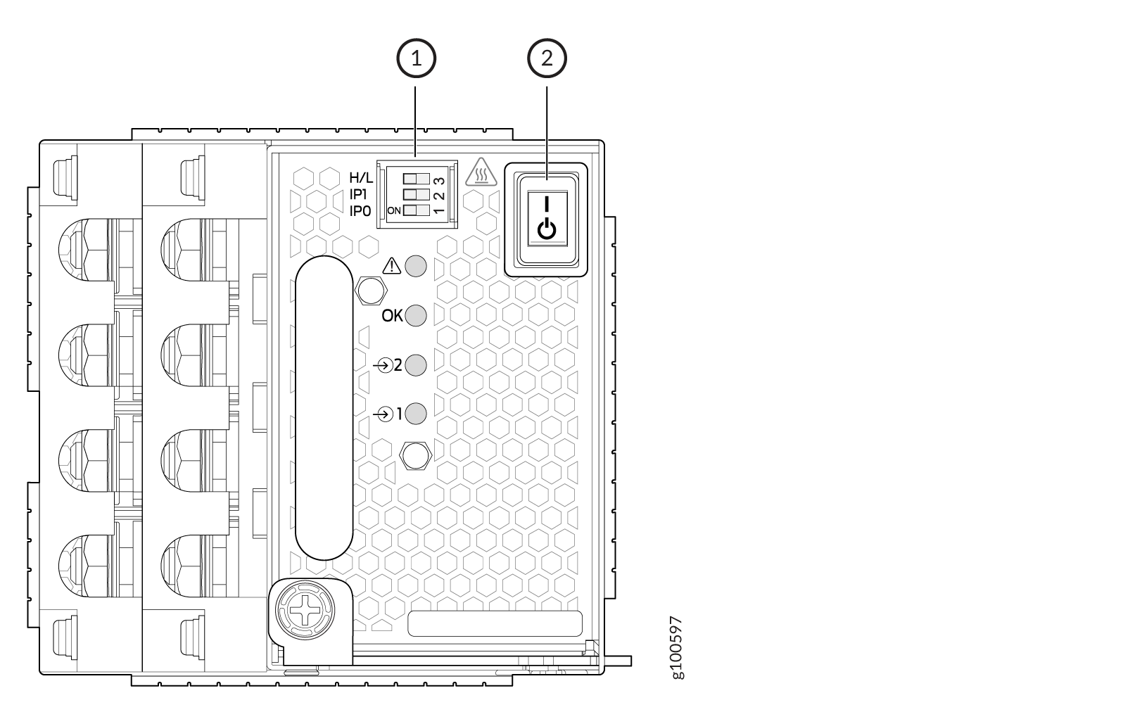
熱記号
を参照してください。ファントレイと電源にアクセスする際は、耐熱手袋を着用してください。
JNP10K-PWR-AC電源の取り付け
JNP10K-PWR-AC電源をルーターに取り付ける前に、次の手順に従います。
ESDによる損傷を防ぐ方法を理解していることを確認します。静 電放電による損傷の防止を参照してください。
AC電源コンセントに電源ルーターが付いている場合は、オフ(O)の位置に設定します。
JNP10K-PWR-AC電源の取り付けに使用できる以下の部品と工具が用意されていることを確認してください。
静電放電(ESD)接地ストラップ
プラス(+)ドライバー、ナンバー1
地理的な場所に適した電源コード。 PTX10008電源ケーブルの仕様を参照してください。
電源コードリテーナークリップ
JNP10K-PWR-AC電源をPTX10008に取り付けるには:
Junos OS Evolvedでサポートされていない電源ユニットのトラブルシューティング
問題点
説明
電源供給ユニット(PSU)を電源に接続したデバイスに部分的に挿入すると、PSUが電源コネクターに接触しますが、ショートピンをかみ合わせることができません。短いピンの係合がないとステータスLEDが点灯しますが、Junos OS EvolvedはPSUを無視します。
原因
短いピンの噛み合いを検知することなく、Junos OS Evolvedは、短いピンを噛み合わせるためにPSUをさらに押し込んだとしても、PSUを無視します。Junos OS Evolvedは、短いピンの係合を3回のみチェックします。チェックは、PSUを部分的に挿入してから500ミリ秒(ms)間隔で行われます。3回の試行の後、Junos OS EvolvedはPSUにアクセスできないと判断し、サポートされていないPSUとしてマークします。
ソリューション
Junos OS EvolvedがPSUを認識する場合:
PSU を半分まで引き抜いて、バックプレーン電源コネクターを外し、シャーシの背面から PSU のプラグを抜きます。
30秒待ちます。
PSUがスロットに完全に収まるまで、PSUをシャーシにまっすぐスライドさせます。PSUフェースプレートが、隣接するPSUフェースプレートまたはPSUカバーと同じ高さであることを確認します。
ステータスLEDが点灯します。
PSUがJunos OS Evolvedによって登録されているかどうかを確認します。
CLI show chassis environment psm コマンドを発行して、取り付けられている PSU の状態を確認します。サンプル出力に示すように、状態というラベルの付いた行の値はオンラインは、PSUが正常に機能していることを示しています。
user@host> show chassis environment psm PSM 2 status: State Online Temperature 32 degrees C / 89 degrees F Temperature 1 34 degrees C / 93 degrees F Temperature 2 35 degrees C / 95 degrees F Temperature 3 44 degrees C / 111 degrees F Fans OK AC Input A0 OK AC Input A1 OK AC Input B0 OK AC Input B1 OK Check Input A0 Alarm No Check Input A1 Alarm No Check Input B0 Alarm No Check Input B1 Alarm No DC Output OK Hours Used 506 Firmware Version Pri MCU 101.101.101.101 Sec MCU 102.102 Com MCU 101 led MCU 100 Fan 1 14304 Fan 2 15648 HVDC Mode All Inputs are AC Health check Information: Status: Health Check Passed Last Result: Passed Last Execution: 2024-01-31 06:58:29 UTC Next Scheduled Run: 2024-02-07 06:58:29 UTC
JNP10K-PWR-AC電源を取り外す
JNP10K-PWR-AC電源をシャーシから取り外す前に:
ESDによる損傷を防ぐ方法を理解していることを確認します。静 電放電による損傷の防止を参照してください。
JNP10K-PWR-AC電源をPTX10008ルーターから取り外す際に、以下の部品と工具が用意されていることを確認してください。
静電放電(ESD)接地ストラップ
プラス(+)ドライバー、ナンバー1
熱保護手袋
交換用電源または電源スロットのカバー
注意:ルーターの動作中は、電源スロットを長時間空のままにしないでください。すぐに電源装置を交換するか、空のスロットにカバーを取り付けてください。
電源を取り外す前に、シャーシに残ったままルーターに電力を供給するのに十分な電源があることを確認してください。 PTX10008 JNP10008-SF3スイッチファブリックの電源計画 または PTX10008 JNP10008-SFスイッチファブリックの電源計画を参照してください。
JNP10K-PWR-AC電源をPTX10008ルーターから取り外すには:
JNP10K-PWR-AC2電源の取り付け
すべてのスロットに同じタイプの電源を使用します。本番シャーシに電源モデルを混在させないでください。システムで2つのモデルを同時に実行できるのは、すべてのJNP10K-PWR-AC/JNP10K-PWR-AC2電源をすべてのJNP10K-PWR-AC2電源に交換する作業中のみです。
稼働中のJNP10K-PWR-AC2電源をシャーシから取り外すときは、熱保護手袋を着用し、重度のやけどをしないようにしてください。電源は、動作条件下で158°Fから176°F(70°Cから80°C)の温度に達することがあります。
JNP10K-PWR-AC2電源をシャーシに取り付ける前に:
-
安全上の警告や注意事項をすべて守っていることを確認します。
-
ESDによる損傷を防ぐ方法を理解していることを確認します。静 電放電による損傷の防止を参照してください。
-
ACまたはDC電源コンセントに電源スイッチがある場合は、オフ(O)に設定します。JNP10K-PWR-AC2電源の取り付けに使用できる以下の部品と工具が用意されていることを確認してください。
-
静電放電(ESD)接地ストラップ
-
プラス(+)ドライバー、ナンバー1
-
地理的な場所(低電圧設置用)または入力アンペア数(高電圧設置用)に適した電源ケーブル。 PTX10008電源ケーブルの仕様を参照してください。HVAC および HVDC コネクタとラグは、設置前に資格のある電気技師が取り付ける必要があります。
-
JNP10K-PWR-AC2 電源を PTX10008 に取り付けるには:
JNP10K-PWR-AC2電源を取り外す
JNP10K-PWR-AC2電源をシャーシから取り外す前に、以下の手順に従います。
-
ESDによる損傷を防ぐ方法を理解していることを確認します。静 電放電による損傷の防止を参照してください。
-
JNP10K-PWR-AC2 電源を PTX10008 ルーターから取り外す際に、以下の部品とツールが用意されていることを確認してください。
-
158°F(70°C)の温度に耐えることができる熱保護手袋
-
静電放電(ESD)接地ストラップ
-
プラス(+)ドライバー、ナンバー1
-
交換用電源または電源スロットのカバー
-
正常に動作しているJNP10K-PWR-AC2電源をシャーシから取り外すときは、熱保護手袋を着用し、重度の火傷から身を守ります。これらの電源は、動作条件下で158°Fから176°F(70°Cから80°C)の温度に達することがあります。
電源を取り外す前に、シャーシに残ったままルーターに電力を供給するのに十分な電源があることを確認してください。 JNP10008-SF5スイッチファブリック構成におけるPTX10008コンポーネントの電力要件、 PTX10008 JNP10008-SF3スイッチファブリックの電源計画、または JNP10008-SFスイッチファブリックのPTX10008電源計画を参照してください。
ルーターの動作中は、電源スロットを長時間空のままにしないでください。すぐに電源装置を交換するか、空のスロットにカバーを取り付けてください。
JNP10K-PWR-AC2 電源を PTX10008 ルーターから取り外すには:
JNP10K-PWR-AC3電源の取り付け
すべてのスロットに同じタイプの電源を使用します。本番シャーシに電源モデルを混在させないでください。システムで2つのモデルを同時に実行できるのは、すべてのJNP10K-PWR-AC電源をすべてのJNP10K-PWR-AC3電源に交換する作業中のみです。
稼働中のJNP10K-PWR-AC3電源をシャーシから取り外すときは、熱保護手袋を着用し、重度の火傷から身を守ります。電源は、動作条件下で158°Fから176°F(70°Cから80°C)の温度に達することがあります。
JNP10K-PWR-AC3電源をシャーシに取り付ける前に:
-
安全上の警告や注意事項をすべて守っていることを確認します。
-
ESDによる損傷を防ぐ方法を理解していることを確認します。静 電放電による損傷の防止を参照してください。
-
AC電源コンセントに電源スイッチが付いている場合は、オフ(O)の位置に設定します。JNP10K-PWR-AC3電源の取り付けに使用できる以下の部品と工具が用意されていることを確認してください。
-
静電放電(ESD)接地ストラップ
-
プラス(+)ドライバー、ナンバー1
-
地理的な場所(低電圧設置用)または入力アンペア数(高電圧設置用)に適した電源ケーブル。 JNP10K-PWR-AC3電源ケーブルの仕様を参照してください。
-
JNP10K-PWR-AC3 電源を PTX10008 に取り付けるには:
JNP10K-PWR-AC3電源を取り外す
JNP10K-PWR-AC3電源をシャーシから取り外す前に、以下の手順に従います。
-
ESDによる損傷を防ぐ方法を理解していることを確認します。静 電放電による損傷の防止を参照してください。
-
以下の部品とツールが用意されていることを確認します。
-
158°F(70°C)の温度に耐えることができる熱保護手袋
-
静電放電(ESD)接地ストラップ
-
プラス(+)ドライバー、ナンバー1
-
交換用電源または電源スロットのカバー
-
動作中のJNP10K-PWR-AC3電源をシャーシから取り外す際は、熱保護手袋を着用し、重度のやけどから身を守ります。これらの電源は、動作条件下で158°Fから176°F(70°Cから80°C)の温度に達することがあります。
電源を取り外す前に、シャーシに残ったままルーターに電力を供給するのに十分な電源があることを確認してください。 JNP10008-SFファブリックのPTX10008コンポーネントの電力要件を参照してください。
ルーターの動作中は、電源スロットを長時間空のままにしないでください。電源装置を速やかに交換するか、空のスロットにABPMまたはカバーを取り付けてください。
JNP10K-PWR-AC3 電源を PTX10008 ルーターから取り外すには:
JNP10K-PWR-DC電源の取り付け
JNP10K-PWR-DC電源をシャーシに取り付ける前に:
安全上の警告と注意事項をすべて守っていることを確認します。
警告:DC電源手順を実行する前に、DC回路に電力が供給されていないことを確認してください。すべての電源が確実にオフになっていることを確認するには、DC回路にサービスを提供するパネルボードでサーキットブレーカーを探し、サーキットブレーカーのスイッチをオフの位置にして、サーキットブレーカーのスイッチハンドルをオフの位置にテープで固定します。
注意:ルーターに電源を接続する前に、資格を持つ電気技師が、供給する接地ケーブルと電源ケーブルにケーブル ラグを取り付ける必要があります。ラグが正しく接続されていないケーブルは、ルーターを損傷させる可能性があります(短絡など)。
注意:同じシャーシ内でAC電源とDC電源を混在させないでください。
注意:安全性と電磁干渉(EMI)の要件を満たし、適切な動作を確保するには、PTX10008ルーターを電源に接続する前にアースに接続する必要があります。シャーシに別の接地線が必要な設置では、ルーターシャーシの保護接地端子を使用してアースに接続します。別の接地線を使用してPTX10008ルーターをアースに接続する方法については、 PTX10008ルーターをアースに接続するを参照してください。
注:JNP10K-PWR-DC電源のバッテリーリターンは、絶縁型DCリターン(DC-I)として接続する必要があります。
ESDによる損傷を防ぐ方法を理解していることを確認します。静 電放電による損傷の防止を参照してください。
JNP10K-PWR-DC電源の取り付けに使用できる以下の部品と工具が用意されていることを確認してください。
静電放電(ESD)接地ストラップ
ケーブルラグ(付属)が取り付けられたDC電源ケーブル(付属していません)。
PTX10008に付属のPanduit LCD4-14A-L、または同等の端子ラグは、4AWG(21.1mm2)または6AWG(13.3mm2)電源ケーブル用のサイズです。シャーシ内のすべてのJNP10K-PWR-DC電源モジュールを使用する場合、提供するDC電源ケーブルは6AWG(13.3mm²)のより線である必要があります。電源ケーブルとラグの圧着部分の周囲に熱収縮チューブ絶縁体を取り付けることをお勧めします。
注:JNP10K-PWR-DCをJNP10K-PWR-DC2にアップグレードし、入力モードを高(80A)に設定する場合、4AWG(21.1mm²)のより線を使用する必要があります。4AWG(21.1mm²)のより線は、定格75°C、または地域の電気規則に従ってください。
注:熱記号
を参照してください。ファントレイと電源にアクセスする際は、耐熱手袋を着用してください。13/32インチ(10 mm)ナットドライバーまたはソケットレンチ
プラス(+)ドライバー、番号1および2
マルチメーター
耐熱手袋
JNP10K-PWR-DC電源をPTX10008ルーターに取り付けるには:
JNP10K-PWR-DC電源の取り外し
JNP10K-PWR-DC電源をルーターから取り外す前に、次の手順に従います。
ESDによる損傷を防ぐ方法を理解していることを確認します。静 電放電による損傷の防止を参照してください。
JNP10K-PWR-DC電源を取り外す際に、以下の部品と工具が用意されていることを確認してください。
静電放電(ESD)接地ストラップ
プラス(+)ドライバー、番号1および2
13/32インチ(10 mm)ナットドライバーまたはソケットレンチ
交換用電源または電源スロットのカバー
熱保護手袋
電源を取り外す前に、シャーシに残ったままルーターに電力を供給するのに十分な電源があることを確認してください。 PTX10008 JNP10008-SF3スイッチファブリックの電源計画 または PTX10008 JNP10008-SFスイッチファブリックの電源計画を参照してください。
DC電源手順を実行する前に、DC回路から電源が抜かれていることを確認してください。すべての電源が確実にオフになっていることを確認するには、DC回路にサービスを提供するパネルボードでサーキットブレーカーを探し、サーキットブレーカーのスイッチをオフ(O)の位置にし、サーキットブレーカーのスイッチハンドルをオフの位置にテープで固定します。
ルーターの動作中は、電源スロットを長時間空のままにしないでください。すぐに電源装置を交換するか、空のスロットにカバーを取り付けてください。
JNP10K-PWR-DC電源をPTX10008ルーターから取り外すには( 図35を参照)。
JNP10K-PWR-DC2電源の取り付け
JNP10K-PWR-DC2電源をシャーシに取り付ける前に、以下の手順に従います。
-
安全上の警告と注意事項をすべて守っていることを確認します。
警告:DC電源手順を実行する前に、DC回路から電源が抜かれていることを確認してください。すべての電源が確実にオフになっていることを確認するには、DC回路にサービスを提供するパネルボードでサーキットブレーカーを探し、サーキットブレーカーのスイッチをオフ(O)の位置にし、サーキットブレーカーのスイッチハンドルをオフの位置にテープで固定します。
警告:動作中のJNP10K-PWR-DC2電源をシャーシから取り外すときは、熱保護手袋を着用し、重度の火傷から身を守ります。JNP10K-PWR-DC2電源は、動作条件下で70°C〜80°C(158°F〜176°F)の温度に達することがあります。
注意:ルーターに電源を接続する前に、資格を持つ電気技師が、供給する接地ケーブルと電源ケーブルにケーブル ラグを取り付ける必要があります。ラグが正しく接続されていないケーブルは、ルーターを損傷させる可能性があります(短絡など)。
注意:すべてのスロットに同じタイプの電源を使用します。本番シャーシに電源モデルを混在させないでください。
注意:安全性と電磁干渉(EMI)の要件を満たし、適切な動作を確保するには、PTX10008ルーターを電源に接続する前にアースに接続する必要があります。シャーシに別の接地線が必要な設置では、ルーターシャーシの保護接地端子を使用してアースに接続します。別の接地線を使用してPTX10008ルーターをアースに接続する方法については、 PTX10008ルーターをアースに接続するを参照してください。
注:JNP10K-PWR-DC2電源のバッテリーリターンは、絶縁型DCリターン(DC-I)として接続する必要があります。
-
ESDによる損傷を防ぐ方法を理解していることを確認します。静 電放電による損傷の防止を参照してください。
-
DC 電源の取り付けに使用できる以下の部品と工具が用意されていることを確認してください。
-
静電放電(ESD)接地ストラップ
-
ケーブルラグ(付属)を取り付けた状態で、大電流ケーブルアセンブリCBL-PWR2-BARE(別売り)を使用してください。
JNP10K-PWR-DC2用に提供される端子ラグは、Panduit LCD4-14A-Lまたは同等品で、4AWG(21.1mm2)電源ケーブル用のサイズです。4AWG(21.1mm²)のより線は、定格75°C、または地域の電気規則に従ってください。電源ケーブルとラグの圧着部分の周囲に熱収縮チューブ絶縁体を取り付けることをお勧めします。
-
13/32インチ(10 mm)ナットドライバーまたはソケットレンチ
-
プラス(+)ドライバー、番号1および2
-
マルチメーター
-
JNP10K-PWR-DC2電源をPTX10008ルーターに取り付けるには:
JNP10K-PWR-DC2電源を取り外す
ルーターからDC電源を取り外す前に、次の手順に従います。
-
ESDによる損傷を防ぐ方法を理解していることを確認します。静 電放電による損傷の防止を参照してください。
-
JNP10K-PWR-DC2電源を取り外す際に、以下の部品と工具が用意されていることを確認してください。
-
158°Fから176°F(70°Cから80°C)の温度に耐えることができる熱保護手袋
-
静電放電(ESD)接地ストラップ
-
プラス(+)ドライバー、番号1および2
-
13/32インチ(10 mm)ナットドライバーまたはソケットレンチ
-
交換用電源または電源スロットのカバー
-
動作中のJNP10K-PWR-DC2電源は、動作条件下で最大158°Fおよび176°F(70°Cおよび80°C)の温度に達することがあります。けがをしないように、動作中の電源に素手で触れないでください。
電源を取り外す前に、シャーシに残ったままルーターに電力を供給するのに十分な電源があることを確認してください。 JNP10008-SF5スイッチファブリック構成のPTX10008コンポーネントの電力要件、 JNP10008-SFスイッチファブリックのPTX10008電源計画、または JNP10008-SF3スイッチファブリックのPTX10008電源計画を参照してください。
ルーターの動作中は、電源スロットを長時間空のままにしないでください。すぐに電源装置を交換するか、空のスロットにカバーを取り付けてください。
JNP10K-PWR-DC2電源をPTX10008ルーターから取り外すには:
JNP10K-PWR-DC3電源の取り付け
JNP10K-PWR-DC3電源をシャーシに取り付ける前に:
-
安全上の警告と注意事項をすべて守ってください。
注:DC電源手順を実行する前に、DC回路から電源が抜かれていることを確認してください。すべての電源が確実にオフになっていることを確認するには、DC回路にサービスを提供するパネルボードでサーキットブレーカーを探し、サーキットブレーカーのスイッチをオフ(O)の位置にし、サーキットブレーカーのスイッチハンドルをオフの位置にテープで固定します。
注:動作中のJNP10K-PWR-DC3電源をシャーシから取り外すときは、熱保護手袋を着用し、重度の火傷から身を守ります。JNP10K-PWR-DC3電源は、機器がオンの場合、温度が70°C〜80°C(70°C〜80°C)に達することがあります。
注:ルーターに電源を接続する前に、資格を持つ電気技師が、供給する接地ケーブルと電源ケーブルにケーブル ラグを取り付ける必要があります。ラグが正しく接続されていないケーブルは、ルーターを損傷させる可能性があります(短絡など)。
注:すべてのスロットに同じタイプの電源を使用します。本番用シャーシ内でAC電源とDC電源を混在させないでください。
注:安全性と電磁干渉(EMI)の要件を満たし、適切な動作を保証するには、電源に接続する前にPTX10008ルーターをアースに接続する必要があります。シャーシに別の接地線が必要な設置では、ルーターシャーシの保護接地端子を使用してアースに接続します。別の接地線を使用してPTX10008ルーターをアースに接続する方法については、 PTX10008ルーターをアースに接続するを参照してください。
注:JNP10K-PWR-DC3電源のバッテリーリターンは、絶縁型DCリターン(DC-I)として接続する必要があります。
-
ESDによる損傷を防ぐ方法を確認します。静 電放電による損傷の防止を参照してください。
-
DC 電源を設置する前に、以下の部品と工具が用意されていることを確認してください。
-
静電放電(ESD)接地ストラップ
-
JNP10K-PWR-DC3(ストレートラグ用Panduit LCD4-14A-L、45°ラグ用LCD-4-14AH-L、または同等品)用に付属の端子ラグで、4AWG(21.1mm²)電源ケーブル用のサイズです。電源ケーブルとラグの折り目部分の周囲に熱収縮チューブ絶縁体を取り付けることをお勧めします(ステップ 9を参照)。
-
13/32インチ(10 mm)ナットドライバーまたはソケットレンチ
-
プラス(+)ドライバー、番号1および2
-
マルチメーター
-
PTX10008シャーシのJNP10K-PWR-DC3電源は、ホットリムーブおよびホットインサート可能な現場交換可能ユニット(FRU)です。背面には、シャーシの左側に沿って最大3つの電源を取り付けることができます。
JNP10K-PWR-DC3電源をPTX10008に取り付けるには:
JNP10K-PWR-DC3電源を取り外す
ルーターからDC電源を取り外す前に、次の手順に従います。
-
ESDによる損傷を防ぐ方法を確認します。静 電放電による損傷の防止を参照してください。
-
JNP10K-PWR-DC3電源を取り外す前に、以下の部品と工具が用意されていることを確認してください。
-
70°C〜80°C(158°F〜176°F)の温度に耐えられる熱保護手袋
-
静電放電(ESD)接地ストラップ
-
プラス(+)ドライバー、番号1および2
-
13/32インチ(10 mm)ナットドライバーまたはソケットレンチ
-
交換用電源または電源スロットのカバー
-
動作するJNP10K-PWR-DC3電源は、機器がオンの状態で158°F〜176°F(70°C〜80°C)の温度に達することがあります。けがをしないように、動作中の電源に素手で触れないでください
電源を取り外す前に、シャーシに残ったままルーターに電力を供給するのに十分な電源があることを確認してください。 JNP10008-SFスイッチファブリックの電源計画PTX10008 または JNP10008-SF3スイッチファブリックのPTX10008電源計画を参照してください。
ルーターの動作中は、電源スロットを長時間空のままにしないでください。速やかに電源装置を交換するか、空のスロットの上にアクティブブランク電源モジュール(ABPM)を取り付けてください。
JNP10K-PWR-DC3 電源を PTX10008 ルーターから取り外すには:
JNP10K-PWR-AC3H電源の取り付け
すべてのスロットに同じタイプの電源を使用します。本番シャーシに電源モデルを混在させないでください。システムで2つのモデルを同時に実行できるのは、すべてのJNP10K-PWR-AC/JNP10K-PWR-AC2電源をJNP10K-PWR-AC3H電源でホットスワップする場合だけです。
稼働中のJNP10K-PWR-AC3H電源をシャーシから取り外す際は、熱保護手袋を着用して重度の火傷をしないようにしてください。電源は、動作条件下で158°F〜176°F(70°C〜80°C)の温度に達することがあります。
JNP10K-PWR-AC3H電源をシャーシに取り付ける前に:
-
安全上の警告や注意事項をすべて守っていることを確認します。
-
ESDによる損傷を防ぐ方法を理解していることを確認します。静 電放電による損傷の防止を参照してください。
-
AC電源コンセントに電源スイッチが付いている場合は、オフ(O)の位置に設定します。JNP10K-PWR-AC3H電源の取り付けに使用できる以下の部品と工具が用意されていることを確認してください。
-
静電放電(ESD)接地ストラップ
-
プラス(+)ドライバー、ナンバー1
-
地理的な場所(低電圧設置用)または入力アンペア数(高電圧設置用)に適した電源ケーブル。 表 14 を参照してください。
-
JNP10K-PWR-AC3H 電源を PTX10008 に取り付けるには:
JNP10K-PWR-AC3H電源を取り外します
JNP10K-PWR-AC3H電源をシャーシから取り外す前に、次の手順に従います。
-
ESDによる損傷を防ぐ方法を理解していることを確認します。静 電放電による損傷の防止を参照してください。
-
以下の部品とツールが用意されていることを確認します。
-
158°F(70°C)の温度に耐えることができる熱保護手袋
-
静電放電(ESD)接地ストラップ
-
プラス(+)ドライバー、ナンバー1
-
交換用電源または電源スロットのカバー
-
動作中のJNP10K-PWR-AC3H電源をシャーシから取り外す際は、熱保護手袋を着用して重度の火傷をしないようにしてください。これらの電源は、動作条件下で158°Fから176°F(70°Cから80°C)の温度に達することがあります。
電源を取り外す前に、シャーシに残ったままルーターに電力を供給するのに十分な電源があることを確認してください。 PTX10004コンポーネントの電力要件を参照してください。
ルーターの動作中は、電源スロットを長時間空のままにしないでください。電源装置を速やかに交換するか、空のスロットにABPMまたはカバーを取り付けてください。
JNP10K-PWR-AC3H 電源を PTX10008 ルーターから取り外すには:




















































