項目一覧
EX2300スイッチの開梱と取り付け
EX2300スイッチの開梱
EX2300 スイッチは、発泡スチロール梱包材で固定された段ボール箱に入れて出荷されます。カートンにはアクセサリーボックスも含まれています。
EX2300 スイッチは、輸送用ダンボール箱内で最大限の保護が施されています。設置の準備が整うまで、スイッチを開梱しないでください。
スイッチを開梱するには、次の手順に従います。
- 輸送用ダンボール箱は、設置場所にできるだけ近い、システム・コンポーネントを取り外すのに十分なスペースがあるステージング・エリアに移動します。
- 矢印が上を向くようにカートンを配置します。
- 輸送用ダンボール箱の上部フラップを開きます。
- アクセサリボックスを取り外し、その中身をカートンに貼付されているラベルの部品在庫と照合します。
- スイッチを固定している梱包材を引き出します。
- 受け取ったシャーシコンポーネントを、スイッチに同梱されている梱包リストと照らし合わせて確認します。スイッチに付属する部品のインベントリは、 EX2300スイッチの部品インベントリ(梱包リスト)に記載されています。
- 後でスイッチを移動または輸送する必要が生じる場合に備えて、輸送用ダンボール箱と梱包材を保管しておいてください。
EX2300スイッチの部品目録(梱包リスト)
EX2300 スイッチは、発泡スチロール梱包材で固定された段ボール箱に入れて出荷されます。カートンにはアクセサリーボックスも含まれています。
スイッチ出荷には、梱包リストが含まれています。スイッチの輸送用ダンボール箱で受け取った部品を、梱包リストの品目と照合します。出荷される部品は、注文した構成によって異なります。
梱包リストに記載された部品が不足している場合は、カスタマーサービス担当者にご連絡いただくか、米国またはカナダからジュニパーカスタマーケアに電話(1-888-314-5822)でお問い合わせください。フリーダイヤル番号のない国での国際電話または直通ダイヤルのオプションについては、 https://www.juniper.net/support/requesting-support.html を参照してください。
表1 は、梱包リスト内の部品とその数量を示しています。
コンポーネント |
量 |
|---|---|
内蔵電源付きスイッチ |
1 |
地理的な場所に適したAC電源コード(ACスイッチモデルのみ) |
1 |
電源コード固定クリップ(EX2300-24MP モデルと EX2300-48MP モデルを除く AC スイッチ モデルのみ) |
1 |
取り付け用ブラケット:
|
2 |
取り付けブラケットをスイッチ シャーシに取り付けるための取り付けネジ:
|
8 |
ゴム足(シャーシに事前インストール済み) |
4 |
ドキュメントのロードマップ |
1 |
バーチャルシャーシの紙のライセンス(EX2300-C-12T-VC、EX2300-C-12P-VC、EX2300-24T-VC、EX2300-24P-VC、EX2300-48T-VC、EX2300-48P-VCモデルのみ) |
1 |
ジュニパーネットワークス製品保証 |
1 |
エンドユーザー使用許諾契約書 |
1 |
スイッチをラックまたはキャビネットに取り付けるには、ラックまたはキャビネットに適した取り付けネジを用意する必要があります。
基本インストール データの更新
設置ベースに追加または変更が発生した場合、または設置ベースが移動された場合は、設置ベースデータを更新します。正確な設置ベース データを持たない製品については、ジュニパーネットワークスはハードウェア交換に関する SLA を満たしていないことに対して責任を負いません。
https://supportportal.juniper.net/s/CreateCase で設置ベースを更新します。
EX2300スイッチの設置と接続
EX2300スイッチを設置して接続するには、次の手順に示します。
参照
EX2300スイッチの取り付け
表 2 は、EX2300 スイッチの取り付けに使用できる方法を示しています。
取り付け方法 |
スイッチ モデル |
詳しく |
|---|---|---|
机またはその他の平らな面(シャーシにあらかじめ取り付けられたゴム製の脚を使用) |
|
机の上などの平らな場所で、シャーシにあらかじめ取り付けられたゴム製の脚を使用します。 |
机またはその他の平らな面(ネジを使用) |
EX2300-C |
ネジを使用して、机の上またはその他の平らな面の下 |
壁 |
EX2300-C |
ネジを使って壁に取り付ける |
EX2300(EX2300-24MP および EX2300-48MP モデルを除く) |
別売りの壁取り付けキットを使用して壁に取り付ける |
|
鉄系材料で作られた表面 |
EX2300-C |
鉄系材料の表面上または表面下(別売りのマグネットマウントキットを使用) |
2 ポスト ラックまたはキャビネット |
|
19インチの2つの投稿で。取り付けブラケットを使用したラックまたはキャビネット(EX2300-Cスイッチの場合は別途注文可能、EX2300スイッチの場合は提供) |
4 ポスト ラックまたはキャビネット |
EX2300-C |
19インチの2つの投稿で。別売りの 2 ポスト ラック取り付けブラケットを使用したラック取り付けブラケットまたはキャビネット |
EX2300279 |
19インチの4つのポストで。別売りの 4 ポスト ラックマウント キットを使用した、ラック取り付け用ブラケットまたはキャビネット |
|
凹んだ位置 |
EX2300279 |
2インチ窪んだ位置で。19インチの前面から。別売りの 4 ポスト ラック取り付けキットの 2 インチ凹部前面取り付けブラケットを使用して、ラックまたはキャビネットへ。この埋め込み位置のスイッチは、2 支柱または 4 支柱のラックおよびキャビネットに取り付けることができます。 |
取り付けブラケットの穴は 1 U(1.75 インチまたは 4.45 cm)離して配置されているため、その間隔で穴が開いているラックまたはキャビネットにスイッチを取り付けることができます。
EX2300 スイッチを机などの平らな場所へ取り付ける
スイッチを机などの平らな場所に取り付ける前に、以下を行ってください。
-
サイトが EX2300スイッチのサイト準備チェックリストで説明されている要件を満たしていることを確認します。
-
机を恒久的な場所に置き、空気の流れとメンテナンスのために十分な隙間を確保し、建物の構造に固定します。
-
一般的な安全のガイドラインと警告を読み、特にシャーシとコンポーネントを持ち上げる際のガイドラインに注意してください。
EX2300-C スイッチ上部の通気口をふさがないでください。通気口をふさぐと、スイッチのシャーシが過熱する可能性があります。
次の部品と工具が揃っていることを確認します。
-
(オプション、別売り、EX2300-Cスイッチにのみ適用)ケーブルガードキット1個。キットには、ケーブル ガードと、ケーブル ガードを EX2300-C スイッチに固定するための 3 番 8 プラス トラス頭ネジが含まれています
-
(オプション、別売り、EX2300-Cスイッチにのみ適用)スイッチのセキュリティ スロットにケーブルを接続し、机またはラックに接続してケーブル ロックを固定することで、EX2300-C スイッチを盗難から保護するための標準ケーブル ロック キット 1 個。キットには、標準のケーブルロックとそのキーが含まれています。
EX2300 スイッチは、事前に取り付けられている 4 つのゴム脚を使用して、机などの平らな場所に取り付けることができます。ゴム製の脚がシャーシを安定させます。
スイッチを机などの平らな場所に取り付けるには、次の手順を実行します。
- スイッチを輸送用ダンボール箱から取り出します(EX2300スイッチの開梱を参照)。
- (オプション、EX2300-Cスイッチにのみ適用)ケーブルガードを取り付けてケーブル接続を保護します。
- スイッチを机または平らな面に置きます。
- スイッチが机の上または平らな面にしっかりと置かれていることを確認します。
- (オプション、EX2300-Cスイッチにのみ適用)スイッチのセキュリティスロットに標準ケーブルロックを取り付けます。
ネジを使用して、EX2300-C スイッチを机またはその他の平らな面の下に取り付ける
ネジを使用してスイッチを机の下やその他のレバー面の下に取り付ける前に、次の手順を実行します。
-
サイトが EX2300スイッチのサイト準備チェックリストで説明されている要件を満たしていることを確認します。
-
机を恒久的な場所に置き、空気の流れとメンテナンスのために十分な隙間を確保し、建物の構造に固定します。
-
一般的な安全のガイドラインと警告を読み、特にシャーシとコンポーネントを持ち上げる際のガイドラインに注意してください。
-
スイッチを輸送用ダンボール箱から取り出します( EX2300スイッチの開梱を参照)。
EX2300-C スイッチ上部の通気口をふさがないでください。通気口をふさぐと、スイッチのシャーシが過熱する可能性があります。
次の部品と工具が揃っていることを確認します。
-
デスク取り付けネジ 3 本(M4 x 30 mm または 8-32 x 1.25 インチ)プラスなべ頭小ネジ—付属していません)
-
プラス(+)ねじ回し、No.2
-
(オプションで別売り)ケーブルガードキット1個。このキットには、ケーブル ガードと、ケーブル ガードをスイッチに固定するための No.8 プラス トラスヘッド ネジ 3 本が含まれています。
-
(オプションで別途注文可能)ケーブルをスイッチのセキュリティスロットに接続し、机またはラックに接続してケーブルロックを固定することで、スイッチを盗難から保護するための標準ケーブルロックキット1個。キットには、標準のケーブルロックとそのキーが含まれています。
EX2300-C スイッチは、シャーシ底面の取り付けスロットと机の取り付けネジを使用してスイッチを固定することで、机などの平らな場所に取り付けることができます。
ネジを使用してスイッチを机の下またはその他の平らな面の下に取り付けるには、次の手順を実行します。
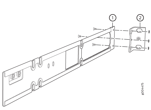
EX2300 スイッチをラックまたはキャビネットの 2 支柱に取り付ける
2 支柱または 4 支柱ラックの 2 支柱にスイッチを取り付ける前に、以下を行ってください。
サイトが EX2300スイッチのサイト準備チェックリストで説明されている要件を満たしていることを確認します。
ラックを恒久的な位置に置き、通気と保守のために十分な隙間を確保し、建物構造に固定します。
一般的な安全のガイドラインと警告を読み、特にシャーシとコンポーネントを持ち上げる際のガイドラインに注意してください。
次の部品と工具が揃っていることを確認します。
プラス(+)ねじ回し、No.2
取り付けブラケット 2 本と取り付けネジ 8 本(EX2300-C スイッチ モデルを除く EX2300 スイッチに付属しており、EX2300-C スイッチは別途注文可能)
シャーシをラックに固定するためのネジ(付属していません)
スイッチを埋め込み位置に取り付ける場合、別売りの 4 ポスト ラック取り付けキットの 2 インチ凹部前面取り付けブラケット(EX2300-C スイッチには適用されません)
すべての EX2300 スイッチは、2 ポストまたは 4 ポストの 19 インチの 2 ポストに取り付けることができます。EX2300 スイッチ(EX2300-C スイッチ モデルを除く)に付属の取り付けブラケットとネジを使用して、ラックまたはキャビネットに収納します。EX2300-Cスイッチの場合、取り付けブラケットとネジは別途注文可能です。このトピックの残りの部分では、 ラック を ラックまたはキャビネットの意味で使用します。
EX2300 スイッチ(EX2300-C スイッチ モデルを除く)を 2 ポスト ラックまたは 4 ポスト ラックの埋め込み位置に取り付ける必要がある場合は、別売りの 4 ポスト ラック取り付けキットに含まれている 2 インチの凹部前面取り付けブラケットを使用できます。EX2300-Cを埋め込み位置に取り付けることはできません。
EX2300-C スイッチ上部の通気口をふさがないでください。通気口をふさぐと、スイッチのシャーシが過熱する可能性があります。
1 人がスイッチを持ち上げ、もう 1 人がスイッチをラックに固定する必要があります。
複数のユニットをラックに取り付ける場合は、最も重いユニットをラックの最下部に取り付け、その他のユニットはラックの最下部から上部にユニットの重量の昇順で取り付けます。
2 支柱または 4 支柱ラックの 2 支柱にスイッチを取り付けるには、次の手順を実行します。
EX2300 スイッチをラックまたはキャビネットの 4 支柱に取り付ける
ラックの 4 支柱にスイッチを取り付ける前に、以下を行ってください。
-
サイトが EX2300スイッチのサイト準備チェックリストで説明されている要件を満たしていることを確認します。
-
ラックを恒久的な位置に置き、通気と保守のために十分な隙間を確保し、建物構造に固定します。
-
一般的な安全のガイドラインと警告を読み、特にシャーシとコンポーネントを持ち上げる際のガイドラインに注意してください。
次の部品と工具が揃っていることを確認します。
-
プラス(+)ねじ回し、No.2
-
プラス 4-40 フラットヘッド取り付けネジ x 6(4 ポスト ラックマウント キットに付属)
-
プラス 4x6 mm フラットヘッド取り付けネジ x 8(4 ポスト ラックマウント キットに付属)
-
フラッシュまたは 2 インチリセス前面取り付けブラケットを各 1 組
-
1 組の側面取り付けレール
-
背面取り付けブレード 1 組
-
シャーシと背面取り付けブレードをラックに固定するためのネジ(付属していません)
EX2300 スイッチ(EX2300-C スイッチ モデルを除く)は、19 インチの 4 ポストに取り付けることができます。ラックまたはキャビネット(別売りの 4 ポスト ラックマウント キットを使用)。このトピックの残りの部分では、 ラック を ラックまたはキャビネットの意味で使用します。
EX2300-C スイッチは、ラックの 4 つの支柱すべてに取り付けることはできません。
EX2300 スイッチ(EX2300-C スイッチ モデルを除く)を 2 ポスト ラックまたは 4 ポスト ラックの埋め込み位置に取り付ける必要がある場合は、別売りの 4 ポスト ラック取り付けキットに含まれている 2 インチの凹部前面取り付けブラケットを使用できます。EX2300-C スイッチは、埋め込み位置に取り付けることはできません。
1 人がスイッチを持ち上げ、もう 1 人がスイッチをラックに固定できるようにする必要があります。
複数のユニットをラックに取り付ける場合は、最も重いユニットをラックの最下部に取り付け、その他のユニットはラックの最下部から上部にユニットの重量の昇順で取り付けます。
ラックの 4 支柱にスイッチを取り付けるには、次の手順に従います。
EX2300スイッチを壁面に取り付ける
このトピックでは、EX2300 スイッチを壁に取り付けるプロセスについて説明します。EX2300-24MP と EX2300-48MP モデルを除く EX2300 スイッチを壁面に取り付けることができます。
EX2300 スイッチ シャーシを壁に取り付ける際、シャーシのフロント パネルを右側に向けます。
EX2300-C スイッチを壁面に取り付ける
スイッチを壁面に取り付ける前に、以下を行ってください。
-
サイトが EX2300スイッチのサイト準備チェックリストで説明されている要件を満たしていることを確認します。
-
一般的な安全のガイドラインと警告を読み、特にシャーシとコンポーネントを持ち上げる際のガイドラインに注意してください。
次の部品と工具が揃っていることを確認します。
-
壁取り付けネジ 3 本(M4 x 30 mm または 8-32 x 1.25 インチ)プラスなべ頭小ネジ—付属していません)
-
プラス(+)ねじ回し、No.2
-
取り付けネジを壁の間柱に直接挿入しない場合、最大 34 kg(75 ポンド)を支える定格の中空壁アンカー。
-
(オプションで別売り)ケーブルガードキット1個。キットには、ケーブル ガードと、ケーブル ガードを EX2300-C スイッチに固定するための 3 番 8 プラス トラス頭ネジが含まれています。
-
(オプションで別途注文可能)ケーブルをスイッチのセキュリティスロットに接続し、机またはラックに接続してケーブルロックを固定することで、スイッチを盗難から保護するための標準ケーブルロックキット1個。キットには、標準のケーブルロックとそのキーが含まれています。
EX2300-C スイッチ(コンパクトなファンレス モデル)は、シャーシ底面の取り付けスロットと取り付けネジを使用してスイッチを固定することで、壁に取り付けることができます。
スイッチを壁に取り付けるには、次の手順に従います。
EX2300 スイッチ(EX2300-C スイッチと EX2300-24MP および EX2300-48MP モデルを除く)の壁面への取り付け
スイッチを壁面に取り付ける前に、以下を行ってください。
-
サイトが EX2300スイッチのサイト準備チェックリストで説明されている要件を満たしていることを確認します。
-
一般的な安全のガイドラインと警告を読み、特にシャーシとコンポーネントを持ち上げる際のガイドラインに注意してください。
次の部品と工具が揃っていることを確認します。
-
壁取り付け用ブラケット 2 個(壁取り付けキットに付属)
-
壁取り付けブラケット ネジ 12 本(壁取り付けキットに付属)
-
取り付けネジ6本(8-32 x 1.25インチまたはM4 x 30 mm)(付属していません)
-
ネジを壁間柱に直接ねじ込まない場合、最大 34 kg(75 ポンド)を支える定格の中空壁アンカー(付属していません)
-
プラス(+)ねじ回し、No.2
EX2300-C スイッチと、EX2300-24MP および EX2300-48MP モデルを除く EX2300 スイッチを壁に取り付けるには、別売りの壁取り付けキットを使用します。
スイッチを壁に取り付けるには、次の手順に従います。
に取り付ける
EX2300-C スイッチを鉄素材の表面上または表面の下に取り付ける
スイッチを鉄素材の表面の上または下に取り付ける前に、以下を実行してください。
-
サイトが EX2300スイッチのサイト準備チェックリストで説明されている要件を満たしていることを確認します。
-
鉄系材料で作られた表面を恒久的な場所に置き、空気の流れとメンテナンスに十分なクリアランスを確保します。
-
一般的な安全のガイドラインと警告を読み、特にシャーシとコンポーネントを持ち上げる際のガイドラインに注意してください。
次の部品と工具が揃っていることを確認します。
-
マグネットマウントキット(別売り)。キットには、粘着性のゴムパッド2枚とマグネットマウントシート1枚が含まれています。
-
鉄系材料で作られた厚さ2mm以上の平らな面(付属していません)
-
(オプションで別売り)ケーブルガードキット1個。キットには、ケーブル ガードと、ケーブル ガードを EX2300-C スイッチに固定するための 3 番 8 プラス トラス頭ネジが含まれています。
-
(オプションで別途注文可能)ケーブルをスイッチのセキュリティスロットに接続し、机またはラックに接続してケーブルロックを固定することで、スイッチを盗難から保護するための標準ケーブルロックキット1個。キットには、標準のケーブルロックとそのキーが含まれています。
EX2300-C スイッチは、別売りのマグネット取り付けキットを使用して、鉄系材料の表面の上または表面の下に取り付けることができます。
別売りのマグネット取り付けキットを使用して、EX2300-Cスイッチを天井に取り付けないでください。
EX2300-C スイッチ上部の通気口をふさがないでください。通気口をふさぐと、スイッチのシャーシが過熱する可能性があります。
鉄素材の表面の上または表面の下にスイッチを取り付けるには、次の手順を実行します。
EX2300 スイッチをラックまたはキャビネットの埋め込み位置に取り付ける
EX2300 スイッチ(EX2300-C スイッチ モデルを除く)を、ラックまたはキャビネットの 2 支柱または 4 支柱に取り付けて、スイッチがラックの前面からラックの内側に 2 インチ凹むようにすることができます。別売りの 4 ポスト ラック取り付けキットに同梱されている 2 インチの凹部前面取り付けブラケットを使用して、スイッチを埋め込み位置に取り付けることができます。
スイッチを凹んだ位置に取り付ける理由としては、次のようなものがあります。
スイッチをキャビネットに取り付けていて、スイッチが埋め込みていない限り、キャビネットのドアが完全に閉まらない場合。
取り付けるスイッチのアップリンク ポートにトランシーバが取り付けられています。アップリンク ポートのトランシーバはスイッチの前面から突き出ています。
スイッチを 4 支柱の埋め込み位置に取り付けるには、 ラックまたはキャビネットの 4 支柱への EX2300 スイッチの取り付けの手順に従います。スイッチを 2 支柱の埋め込み位置に取り付けるには、 ラックまたはキャビネットの 2 支柱への EX2300 スイッチの取り付けの手順に従います。















