SRX345 압축 풀기 및 장착
SRX345 방화벽 포장 풀기
다음 부품 및 도구를 사용할 수 있는지 확인합니다.
Phillips (+) 드라이버, 번호 2
구성 요소가 차지하지 않는 슬롯을 덮는 빈 패널
SRX345 방화벽은 판지 상자에 담겨 배송되며 폼 포장재로 고정됩니다. 상자에는 액세서리 상자와 빠른 시작 지침도 포함되어 있습니다.
서비스 게이트웨이는 판지 상자 내부에서 최대한 보호됩니다. 설치를 시작할 준비가 될 때까지 포장을 풀지 마십시오.
SRX345 방화벽의 압축을 풀려면:
- 판지 상자를 가능한 한 설치 장소에 가까운 스테이징 영역으로 이동하여 섀시에서 구성 요소를 제거할 수 있는 충분한 공간을 확보합니다.
- 화살표가 위를 향하도록 판지 상자를 놓습니다.
- 판지 상자의 상단을 조심스럽게 엽니다.
- 서비스 게이트웨이의 상단을 덮고 있는 폼을 제거합니다.
- 액세서리 상자를 제거합니다.
- SRX345 서비스 게이트웨이를 통해 수신된 부품 확인의 목록과 비교하여 수신된 부품을 확인합니다.
- 브래킷과 볼트를 액세서리 상자 안에 보관하십시오.
- 나중에 서비스 게이트웨이를 이동하거나 배송해야 할 경우를 대비하여 배송 상자와 포장재를 보관해 두십시오.
SRX345 방화벽을 통해 수신된 부품 확인
SRX345 방화벽 배송 패키지에는 포장 목록이 포함되어 있습니다. 발송물의 부품을 포장 목록에 있는 품목과 비교하여 확인하십시오. 포장 목록에는 부품 번호가 명시되어 있으며 주문의 각 부품에 대한 간략한 설명이 포함되어 있습니다.
포장 목록에 누락된 부품이 있는 경우 고객 서비스 담당자에게 문의하거나 미국 또는 캐나다 내 주니퍼 고객 관리 센터(1-888-314-5822)로 전화하여 문의하십시오. 수신자 부담 번호가 없는 국가의 국제 전화 또는 직통 전화 옵션에 대한 자세한 내용은 https://www.juniper.net/support/requesting-support.html 를 참조하십시오.
완전히 구성된 서비스 게이트웨이에는 표 1에 나열된 구성 요소가 설치된 섀시와 표 2에 나열된 부품이 포함된 액세서리 상자가 포함됩니다.
서비스 게이트웨이와 함께 제공되는 부품은 주문한 구성에 따라 달라질 수 있습니다.
구성 요소 |
수량 |
|---|---|
SRX345 방화벽 섀시(Mini-PIM 슬롯용 빈 커버 포함) |
1 |
마운팅 브래킷 |
2 |
마운팅 브래킷을 섀시에 부착하기 위한 마운팅 나사 |
8 |
Type-A 및 Mini-B USB 플러그가 있는 USB 콘솔 케이블 |
1 |
지리적 위치에 적합한 전원 코드 |
1(단일 AC 전원 공급장치가 있는 서비스 게이트웨이용) 2(이중 AC 전원 공급장치가 있는 서비스 게이트웨이용) |
부분 |
수량 |
|---|---|
RoHS 카드 |
1 |
최종 사용자 사용권 계약 |
1 |
문서, 로드맵 및 제품 보증 |
1 |
랙 마운트 설치를 위한 SRX345 방화벽 준비
SRX345 방화벽은 4포스트(텔코) 랙, 밀폐된 캐비닛 및 오픈 프레임 랙에 장착할 수 있습니다. 중앙 장착 랙은 지원되지 않습니다.
SRX345 방화벽을 랙에 장착하기 전에 다음을 수행합니다.
사이트가 SRX345 사이트 준비 체크리스트에 설명된 요구 사항을 충족하는지 확인합니다.
SRX345 방화벽용 랙 마운팅 키트에 다음 부품을 사용할 수 있는지 확인합니다.
랙 마운팅 브래킷
서비스 게이트웨이의 섀시에 마운팅 브래킷을 부착하기 위한 마운팅 나사 8개
마운팅 브래킷을 랙 레일에 부착하기 위한 마운팅 나사 4개
랙 또는 캐비닛이 SRX345 서비스 게이트웨이 랙 크기 및 강도 요구 사항에 설명된 특정 요구 사항을 충족하는지 확인합니다.
랙 또는 캐비닛을 영구적인 위치에 배치하여 공기 흐름 및 유지보수를 위한 적절한 여유 공간을 확보하고 건물 구조에 고정합니다. 자세한 내용은 SRX345 서비스 게이트웨이 캐비닛 공기 흐름 요구 사항을 참조하십시오.
배송 상자에서 게이트웨이 섀시를 꺼냅니다. 포장 풀기 지침은 SRX345 서비스 게이트웨이 포장 풀기를 참조하십시오.
랙에 SRX345 방화벽 설치
SRX345 방화벽을 랙에 전면 장착할 수 있습니다. 4포스트(telco) 랙, 밀폐형 캐비닛 및 오픈 프레임 랙을 포함하여 다양한 유형의 랙을 사용할 수 있습니다.
하나의 랙에 여러 디바이스를 설치하는 경우, 가장 낮은 디바이스를 먼저 설치하고 랙에서 위쪽으로 진행하십시오.
랙에 서비스 게이트웨이를 설치하려면 다음을 수행합니다.
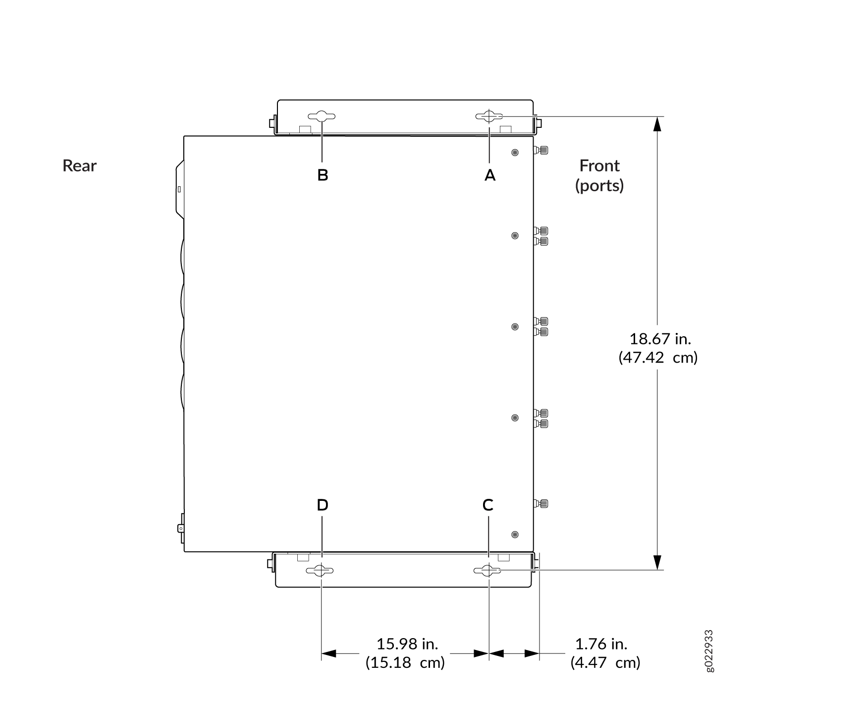
벽에 SRX345 방화벽 설치
SRX345 방화벽은 별도로 주문할 수 있는 벽면 장착 키트를 사용하여 벽에 설치할 수 있습니다.
SRX345를 설치하기 전에 다음을 수행합니다.
-
SRX345 사이트 지침 및 요구 사항을 검토합니다.
-
다음 부품 및 도구를 사용할 수 있는지 확인합니다.
-
벽걸이 브래킷 2개(벽걸이 키트에 제공됨)
-
벽걸이 브래킷 나사 12개(벽걸이 키트에 제공됨)
-
장착 나사 6개(8-32 x 1.25인치 또는 M4 x 30mm)(제공되지 않음)
-
나사를 벽 스터드에 직접 조이지 않는 경우 최대 15.5kg(7lb)을 지지하는 것으로 평가된 중공 벽 앵커(제공되지 않음)
-
Phillips (+) 드라이버, 번호 2
-





