QFX5220 Site Guidelines and Requirements
QFX5220 Environmental Requirements and Specifications
The switch must be installed in a rack or cabinet. It must be housed in a dry, clean, well-ventilated, and temperature-controlled environment.
Follow these environmental guidelines:
The site must be as dust-free as possible, because dust can clog air intake vents and filters, reducing the efficiency of the switch cooling system.
Maintain ambient airflow for normal switch operation. If the airflow is blocked or restricted, or if the intake air is too warm, the switch might overheat, leading to the switch temperature monitor shutting down the device to protect the hardware components.
Table 1 provides the required environmental conditions for normal switch operation.
Description |
Tolerance |
|---|---|
Altitude |
|
Relative humidity, operating |
Normal operation ensured in relative humidity range of 5% through 90%, noncondensing |
Temperature |
QFX5220-128C-AFO
QFX5220-32CD-AFO
QFX5220-32CD-AFI
|
Seismic |
Designed to comply with Zone 4 earthquake requirements per NEBS GR-63-CORE, Issue 3. |
General Site Guidelines
Efficient device operation requires proper site planning and maintenance. It also requires proper layout of the equipment, rack or cabinet, and wiring closet.
To plan and create an acceptable operating environment for your device and prevent environmentally caused equipment failures:
Keep the area around the chassis free from dust and conductive material, such as metal flakes.
Follow the prescribed airflow guidelines to ensure that the cooling system functions properly. Ensure that exhaust from other equipment does not blow into the intake vents of the device.
Follow the prescribed electrostatic discharge (ESD) prevention procedures to prevent damaging the equipment. Static discharge can cause components to fail completely or intermittently over time.
Install the device in a secure area, so that only authorized personnel can access the device.
QFX5220 Grounding Cable and Lug Specifications
For installations that require a separate grounding conductor to the chassis, the switch must be adequately grounded before power is connected to ensure proper operation and to meet safety and electromagnetic interference (EMI) requirements.
To ensure proper operation and to meet safety and electromagnetic interference (EMI) requirements, you must connect an Juniper Product Name to earth ground before you connect power to the Chassis .
The switch is pluggable type A equipment installed in a restricted-access location. It has a separate protective earthing terminal provided on the chassis in addition to the grounding pin of the power supply cord. This separate protective earthing terminal must be permanently connected to earth ground for installations that require a separate grounding conductor to the chassis.
To comply with GR-1089 requirements, all intrabuilding copper cabling used for SFP+ and QSFP+ ports must be shielded and grounded at both ends.
Before switch installation begins, a licensed electrician must attach a cable lug to the grounding cables that you supply. See Ground the QFX5220-32CD and Connect Power and Ground the QFX5220-128C. A cable with an incorrectly attached lug can damage the switch.
Before connecting the switch to earth ground, review the following information:
The grounding lug required for the protective earthing terminal on a QFX5220 is a Panduit LCD10-10A-L or equivalent (not provided). The grounding lug should accommodates 14–10 AWG (2–5.3 mm²) stranded wire.
The grounding cable that you provide for a QFX5220 must be 14 AWG (2 mm²), minimum 60° C wire, or as permitted by the local code.
Ensure you have two SAE 10-32 x 1/4 in. washers and screws to attach the cable and bracket (not provided).
QFX5220 Clearance Requirements for Airflow and Hardware Maintenance
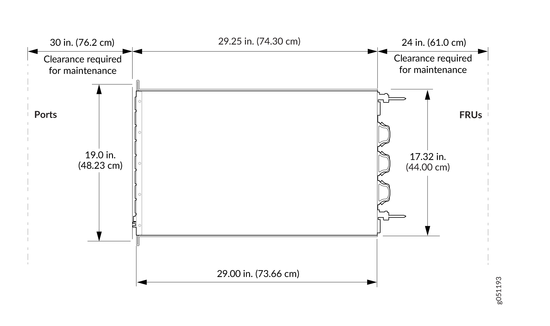
When planning the site for installing a QFX5220, you must allow sufficient clearance around the installed chassis (see Figure 2 and Figure 3).


For the cooling system to function properly, the airflow around the chassis must be unrestricted. See QFX5220 Cooling System for more information about the airflow through the chassis.
If you are mounting a QFX5220 in a rack or cabinet with other equipment, ensure that the exhaust from other equipment does not blow into the intake vents of the chassis.
Leave at least 24 in. (61 cm) both in front of and behind the QFX5220. For service personnel to remove and install hardware components, you must leave adequate space at the front and back of the switch. NEBS GR-63 recommends that you allow at least 30 in. (76.2 cm) in front of the rack or cabinet and 24 in. (61 cm) behind the rack or cabinet.
QFX5220 Chassis Physical Specifications
The QFX5220 is a rigid sheet-metal structure that houses the hardware components (see Table 2).
Product Model |
Height |
Width |
Depth |
Weight |
|---|---|---|---|---|
QFX5220-32CD |
1.72 in. (4.3 cm) |
17.26 in. (43.8 cm) |
21.1 in. (53.59 cm) |
24.5 lb (11.11 kg) with power supplies and fans installed |
QFX5220-128C |
6.88 in. (17.48 cm) |
17.32 in (44 cm) |
29.25 in. (74.3 cm) |
98 lb (44.45 kg) with power supplies and fans installed 76 lb (34.47 kg) chassis only |
Site Electrical Wiring Guidelines
Table 3 describes the factors you must consider while planning the electrical wiring at your site.
You must provide a properly grounded and shielded environment and use electrical surge-suppression devices.
Avertissement Vous devez établir un environnement protégé et convenablement mis à la terre et utiliser des dispositifs de parasurtension.
Site Wiring Factor |
Guidelines |
|---|---|
Signaling limitations |
If your site experiences any of the following problems, consult experts in electrical surge suppression and shielding:
|
Radio frequency interference |
To reduce or eliminate RFI from your site wiring, do the following:
|
Electromagnetic compatibility |
If your site is susceptible to problems with electromagnetic compatibility (EMC), particularly from lightning or radio transmitters, seek expert advice. Strong sources of electromagnetic interference (EMI) can cause:
|
QFX5220 Rack Requirements
QFX5220 switches are designed to be installed on four-post racks.
Rack requirements consist of:
Rack type
Mounting bracket hole spacing
Rack size and strength
Table 4 provides the rack requirements and specifications for the QFX5220.
Rack Requirement |
Guidelines |
|---|---|
Rack type |
Use a four-post rack that provides bracket holes or hole patterns spaced at 1-U (1.75 in. or 4.45 cm) increments and that meets the size and strength requirements to support the weight. A U is the standard rack unit defined in Cabinets, Racks, Panels, and Associated Equipment (document number EIA-310–D) published by the Electronics Industry Association. |
Mounting bracket hole spacing |
The holes in the mounting brackets are spaced at 1-U (1.75 in. or 4.45 cm) increments, so that the switch can be mounted in any rack that provides holes spaced at that distance. |
Rack size and strength |
|
Rack connection to building structure |
|
QFX5220 Cabinet Requirements
You can mount the QFX5220 in an enclosure or cabinet that contains a four-post 19-in. open rack as defined in Cabinets, Racks, Panels, and Associated Equipment (document number EIA-310-D) published by the Electronics Industry Association.
Cabinet requirements consist of:
Cabinet size and clearance
Cabinet airflow requirements
Table 5 provides the cabinet requirements and specifications for the QFX5220.
Cabinet Requirement |
Guidelines |
|---|---|
Cabinet size and clearance |
The minimum cabinet size for accommodating a QFX5220 device is 36 in. (91.4 cm) deep. Large cabinets improve airflow and reduce the chance of overheating. |
Cabinet airflow requirements |
When you mount the switch in a cabinet, ensure that ventilation through the cabinet is sufficient to prevent overheating.
|