Help us improve your experience.

Let us know what you think.

Do you have time for a two-minute survey?

 
 

SSR1500站点指南和要求

常规站点安装指南

以下预防措施可帮助您为 SSR1500 设备规划可接受的操作环境,并避免环境引起的设备故障:

  • 保持机箱周围区域无灰尘。
  • 遵循规定的气流指南,以确保冷却系统正常运行,并且其他设备的废气不会吹入设备的进气口。
  • 遵循 ESD 程序以避免损坏设备。静电放电会导致组件随着时间的推移完全或间歇性地失效。
  • 将设备安装在安全区域,以便只有授权人员才能访问设备。

现场电气布线指南

表 1 描述了在规划现场电线时必须考虑的因素。

警告:

您必须提供适当的接地和屏蔽环境,并使用电涌抑制设备。

Avertissement Vous devez établir un environnement protégé et convenablement mis à la terre et utiliser des dispositifs de parasurtension.

表 1:现场电气布线指南
站点布线系数 指南
信令限制

如果您的站点遇到以下任何问题,请咨询电涌抑制和屏蔽方面的专家:

  • 电线安装不当会导致射频干扰 (RFI)。

  • 当电线超过建议的距离或在建筑物之间通过时,就会发生雷击损坏。

  • 雷电引起的电磁脉冲 (EMP) 会损坏未屏蔽的导体和电子设备。

射频干扰

要减少或消除现场布线中的 RFI,请执行以下操作:

  • 使用接地导体分布良好的双绞线电缆。

  • 如果必须超过建议的距离,请在适用的情况下为每个数据信号使用带有一根接地导体的高质量双绞线电缆。

电磁兼容性

如果您的网站容易受到电磁兼容性 (EMC) 问题的影响,尤其是来自闪电或无线电发射器的问题,请寻求专家建议。

强电磁干扰源(EMI)引起的一些问题是:

  • 设备中的信号驱动器和接收器损坏

  • 由于通过线路传导到设备中的电涌而导致的电气危险

SSR1500的环境要求和规范

SSR1500必须安置在干燥、清洁、通风良好和温度受控的环境中。请遵循以下环境准则:

  • 现场必须无尘,因为灰尘会堵塞进气口,降低冷却系统的效率。

  • 保持环境气流以实现正常运行。如果气流被阻塞或限制,或者进气太热,设备可能会过热。

下表列出了SSR1500的环境规范。

表 2: SSR1500的环境规格
说明
工作温度

0° C 到 40° C(32° F 到 104° F)

储存温度 -20° C 至 70° C(-4° F 至 158° F)

SSR1500硬件维护的间隙要求

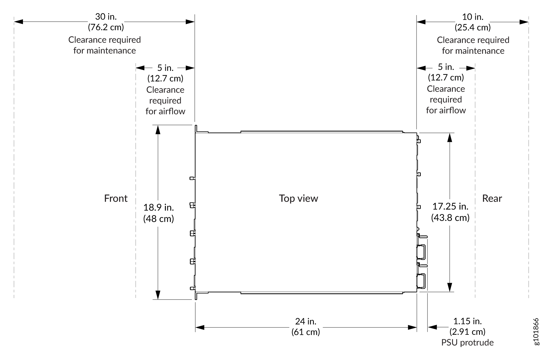
规划安装SSR1500的站点时,必须为已安装的机箱留出足够的间隙。

  • 为了使SSR1500的工作温度达到最佳状态,机箱周围的气流必须不受限制。有关通过机箱的气流的详细信息,请参阅 冷却系统

  • 为了使维修人员卸下和安装硬件组件,并适应接口和电源线弯曲半径,设备的前后必须有足够的空间。允许至少 24 英寸。(61 厘米)设备正面和背面的空间。

  • 如果要将设备与其他设备一起安装在机架中,或者将其放置在桌面上,靠近其他设备,请确保其他设备的废气不会吹入机箱的进气口。

图 1:SSR1500 Clearance Requirements for Hardware Maintenance of SSR1500硬件维护的间隙要求

SSR1500的机架要求

您可以将SSR1500安装在四柱式机架上。机架安装套件随设备一起提供。如果需要,您可以单独订购备用机架安装套件(部件号:JNP-RMK-SSRHE)。 表 3 提供了SSR1500的机架要求和规格。

表 3:机架要求和规格
机架要求 指南
机架类型

使用带有以 1-U 增量(1.75 英寸或 4.45 厘米)间隔的托架孔或孔型的四柱式机架。确保机架满足支撑重量的尺寸和强度要求。

U 是电子工业协会发布的机柜、机架、面板和相关设备(文档编号 EIA-310-D)中定义的标准机架单元。

安装支架孔间距 确保安装支架上的孔间距为 1 U(1.75 英寸或 4.45 厘米),以便设备可以安装在提供在该距离间隔的孔的任何机架中。
机架尺寸和强度
  • 确保机架符合 19 英寸的标准。电子工业协会发布的机柜、机架、面板和相关设备(文档编号 EIA-310-D)中定义的机架。

  • 按照欧洲电信标准协会 (http://www.etsi.org) 发布的四部分设备工程 (EE) 欧洲设备实践电信标准(文档编号 ETS 300 119-1 至 119-4)中的定义,使用 800 毫米机架。

    符合此标准的机架中导轨之间的水平间距通常比设备的安装支架宽,后者的尺寸为 19 英寸。(48.26 厘米)从外边缘到外边缘。根据需要使用经批准的机翼装置缩小导轨之间的开口。

  • 确保机架导轨的间距足够宽,以容纳设备机箱的外部尺寸。前部安装支架的外边缘将宽度扩展到 19 英寸。(48.26 厘米)。

  • 确保对于四柱安装,前后机架导轨的间距在 23.6 英寸之间。(60 厘米)和 36 英寸(91.4厘米)从前到后。

  • 确保机架足够坚固以支撑设备的重量。SSR1500重约 48.51 磅(22 千克)。

  • 确保导轨和相邻机架的间距允许设备和机架周围有适当的间隙。

机架连接到建筑结构
  • 将机架固定到建筑结构上。

  • 如果您所在的地理区域可能发生地震,请将机架固定在地板上。

  • 将机架固定在天花板支架以及墙壁或地板支架上,以获得最大的稳定性。