Help us improve your experience.

Let us know what you think.

Do you have time for a two-minute survey?

 
 

ME-X6 Specifications

There are minor differences between the ME-X6 variants 1 and 2, mainly in the power specifications. The operational and ambient temperature limits also differ between the two versions.

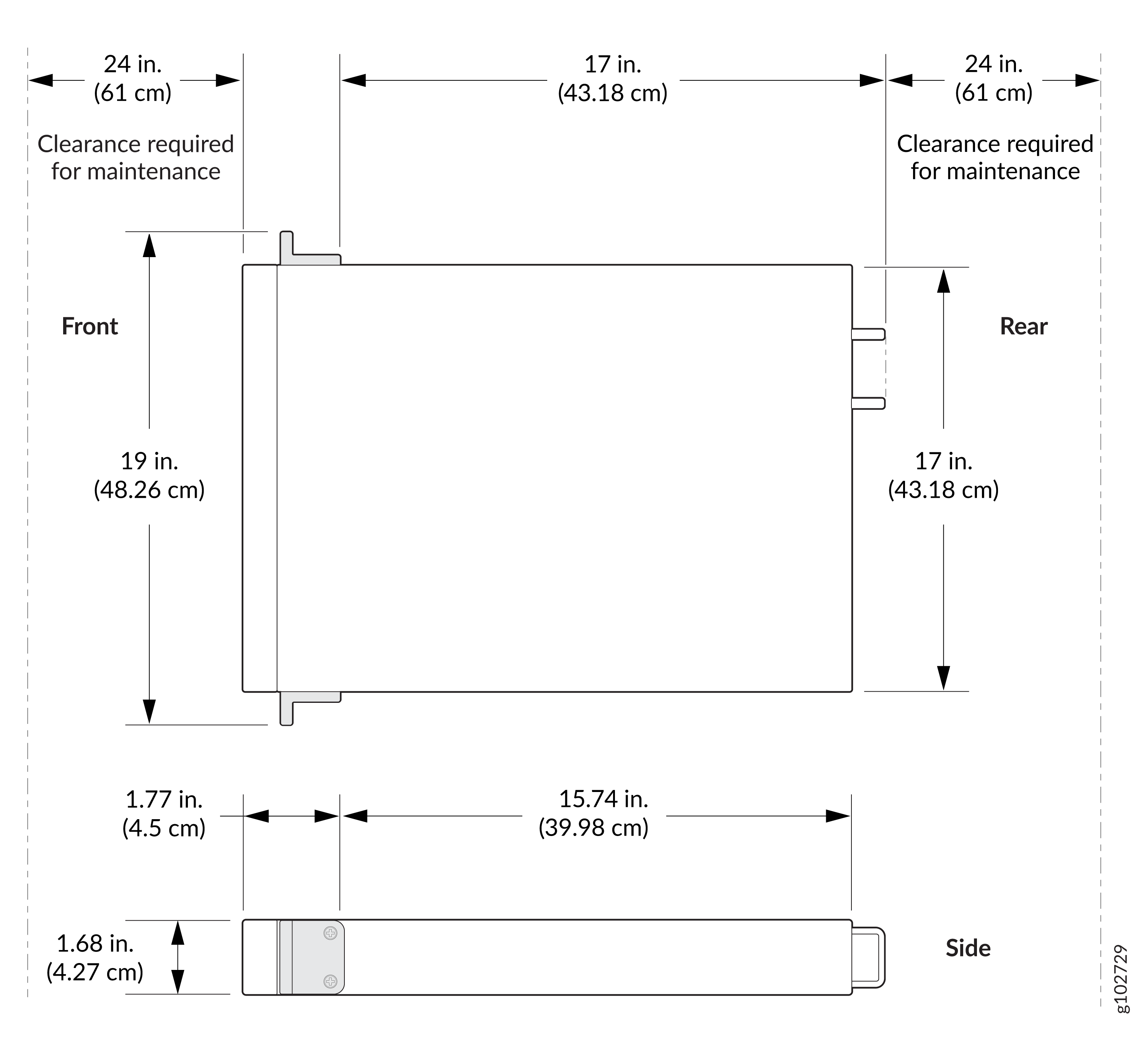
Figure 1: ME-X6 Dimensions Technical diagram showing dimensions and maintenance clearance for a rectangular device. Front width 19 in, depth 17 in; clearance 24 in sides. Side height 1.68 in, length 15.74 in; protruding part 1.77 in. Measurements in inches and cm.
Table 1: ME-X6 Physical Specifications
Parameter Value

Form Factor

1 U

Height

1.68 in. (4.3 cm)

Width

19 in. (48.2 cm)

Depth

18.8 in. (47.8 cm)

Weight

Variant 1: 29.9 lb (13.6 kg)

Variant 2: 24.8 lb (11.27 kg)

Power supplies

Dual, hot-plug, redundant, 800 W

Cooling system

Multiple internal fans

Table 2: ME-X6 Network Capacity

Parameter

Value

Maximum APs

5000

Maximum clients

100,000

Maximum throughput

100 Gbps

Data interfaces

Quad-port 25GbE SFP28

Management interfaces

Quad-port 25GbE SFP28

Table 3: ME-X6 Electrical Specifications
Parameter Value

Maximum power supply output

800 W

Operating voltage

100-240 VAC, autoranging

Operating frequency

50 to 60 Hz

Table 4: ME-X6 Power Specifications
Parameter ME-X6 Variant 1 ME-X6 Variant 2

Maximum power draw

490 W

600 W

Idle power draw

105 W

355 W

Maximum heat dissipation

3139 BTU/hour

2047.3 BTU/hour

Table 5: ME-X6 Environmental Specifications
Parameter Value

Operating temperature

23 °F through 131 °F (-5 °C through 55 °C)

Ambient temperature restriction

122 °F (50 °C)

Maximum temperature gradient (both operational and non-operational)

36 °F (20 °C) in an hour and 41 °F (5 °C) in 15 minutes

For tape, 41 °F (5 °C) in an hour

Non-operating temperature limit

-40 °F to 149 °F (-40 °C to 65 °C)

Non-operating humidity limit

5% through 95% at 80.6 °F (27 °C) maximum dew point

Maximum operating altitude

10,000 ft (3048 m)

Maximum non-operating altitude

39370 ft (12000 m)

Mean time between failures (MTBF)

231,000 hours

Table 6: ME-X6 Vibration Specifications
Parameter Value
Maximum operating vibration 0.21 g at 5 Hz to 500 Hz (all orientations)
Maximum storage vibration

1.88 g at 10 Hz to 500 Hz for 15 minutes (all six sides tested)

Table 7: ME-X6 Shock Pulse Specifications
Parameter Value
Maximum operating shock pulse Six consecutively executed shock pulses in the positive and negative x, y, and z axes of 6 G for up to 11 ms (4 pulses on each side of the system)
Maximum storage shock pulse Six consecutively executed shock pulses in the positive and negative x, y, and z axes of 71 G for up to 2 ms (one pulse on each side of the system)